Viladům 4kk se zahradou
- [13.1. 2026]Smazat/ Upravit/ Topovat






























Nové rodinné bydlení na kraji Chráněné krajinné oblasti Brd. Zkolaudovaný byt 4kk s vlastní zahradou. Představte si domov, kde se každý den probouzíte s výhledem na klidnou přírodu, v místě kde je vše co potřebujete. Moderní architektura a design domu zapadá do okolní krajiny. To není jen dům, to je nový začátek. Vítejte ve viladomu Stará Huť u Dobříše, kde na vás čeká jedinečná bytová jednotka 4kk o celkové ploše 135 m2 s vlastní zahradou o velikosti 179 m2. Proč se zamilujete právě sem.
Viladům v přírodě a přitom blízko města. Užijte si jedinečnou kombinaci klidného života v přírodě s pohodlným dojezdem do Prahy, Příbrami i Dobříše. Na Prahu se po dálnici D4 dostanete za pouhých 30 minut, zatímco centrum Dobříše s veškerou občanskou vybaveností je vzdálené jen 5 minut jízdy. Nemusíte dělat kompromisy mezi klidem, bezpečím a pohodlím.
Design a kvalita, které pocítíte.
Dům je zděný z pálené cihly Porotherm 30cm, zateplení domu Extrapor 20cm, fasádní omítka Weber silikon, střešní krytina Bramac, stropy řešeny panely Goldbeck prefabeton, zateplení minerální vlnou domo Plus 30cm. Plastová okna jsou v nejvyšší kvalitě - provedení trojsklo, šestikomorový rám.
Příprava na osazení FVE, elektro příprava pro venkovní žaluzie.
Každý dům má vlastní elektroměr, vodoměr, vytápění a ohřev vody, venkovní vodovod, rozvod elektro pro možnost osvětlení terasy a zahrady, případně připojení bazénu.
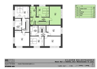
Byt č. 1 i zahrada jsou orientovány na SV s terasou na V. Dispozice domu 4+kk s užitnou plochou 104m² a 22m2 půdní prostor nabízí v 1NP prostorný obývací pokoj s kuchyňským koutem o výměře 28m2 a schodištěm do 2NP, přímý vstup na terasu a zahradu o rozloze 178m2, koupelnu se sprchovým koutem 5m2, komora 1m2 a vstupní chodba 5m2. Ve 2NP naleznete 2x pokoj 12m2 a 20m2, samostatnou koupelnu 6m2 a samostatné wc 1m2, chodbu 10m2 se schodištěm do 3NP, zde naleznete pracovnu 13m2, a 2x půdní prostory plně pochozí o celkové výměře 22m2.
Půdní prostory lze využít pro podnikání s možností úpravy vybudování wc s umyvadlem i sprchovým koutem.
Součástí prodejní ceny jsou
- 2x parkovací stání ze zámkové dlažby, elektro příprava pro dobíjení automobilů, oplocení pozemku a zahrady i vlastním vstupem z ulice,
- dokončení povrchových úprav a zařízení koupelen, podlah, dveří a schodiště z výběru standardních zařizovacích předmětů, plovoucí podlahy Egger, bytové dveře CAG, dlažby obklady RAKO a zařizovací předměty SIKO.
Jednotka byla navržena s důrazem na detail a kvalitní materiály. Interiéry jsou prosvětlené díky velkoformátovým oknům, která dokonale propojují interiér s venkovní zahradou. K celkovému komfortu přispívá výběr prémiových materiálů.
Soukromí a prostor jen pro vás.
Váš kousek ráje. Jednotka má vlastní, oddělenou zahradu, která vám poskytne dostatek soukromí pro relaxaci, grilování s přáteli nebo dětské hry. Zapomeňte na hlučné sousedy a užijte si klid a výhledy do přírody, který si zasloužíte. Viladům tvoří pouhé tři j
Viladům v přírodě a přitom blízko města. Užijte si jedinečnou kombinaci klidného života v přírodě s pohodlným dojezdem do Prahy, Příbrami i Dobříše. Na Prahu se po dálnici D4 dostanete za pouhých 30 minut, zatímco centrum Dobříše s veškerou občanskou vybaveností je vzdálené jen 5 minut jízdy. Nemusíte dělat kompromisy mezi klidem, bezpečím a pohodlím.
Design a kvalita, které pocítíte.
Dům je zděný z pálené cihly Porotherm 30cm, zateplení domu Extrapor 20cm, fasádní omítka Weber silikon, střešní krytina Bramac, stropy řešeny panely Goldbeck prefabeton, zateplení minerální vlnou domo Plus 30cm. Plastová okna jsou v nejvyšší kvalitě - provedení trojsklo, šestikomorový rám.
Příprava na osazení FVE, elektro příprava pro venkovní žaluzie.
Každý dům má vlastní elektroměr, vodoměr, vytápění a ohřev vody, venkovní vodovod, rozvod elektro pro možnost osvětlení terasy a zahrady, případně připojení bazénu.
Byt č. 1 i zahrada jsou orientovány na SV s terasou na V. Dispozice domu 4+kk s užitnou plochou 104m² a 22m2 půdní prostor nabízí v 1NP prostorný obývací pokoj s kuchyňským koutem o výměře 28m2 a schodištěm do 2NP, přímý vstup na terasu a zahradu o rozloze 178m2, koupelnu se sprchovým koutem 5m2, komora 1m2 a vstupní chodba 5m2. Ve 2NP naleznete 2x pokoj 12m2 a 20m2, samostatnou koupelnu 6m2 a samostatné wc 1m2, chodbu 10m2 se schodištěm do 3NP, zde naleznete pracovnu 13m2, a 2x půdní prostory plně pochozí o celkové výměře 22m2.
Půdní prostory lze využít pro podnikání s možností úpravy vybudování wc s umyvadlem i sprchovým koutem.
Součástí prodejní ceny jsou
- 2x parkovací stání ze zámkové dlažby, elektro příprava pro dobíjení automobilů, oplocení pozemku a zahrady i vlastním vstupem z ulice,
- dokončení povrchových úprav a zařízení koupelen, podlah, dveří a schodiště z výběru standardních zařizovacích předmětů, plovoucí podlahy Egger, bytové dveře CAG, dlažby obklady RAKO a zařizovací předměty SIKO.
Jednotka byla navržena s důrazem na detail a kvalitní materiály. Interiéry jsou prosvětlené díky velkoformátovým oknům, která dokonale propojují interiér s venkovní zahradou. K celkovému komfortu přispívá výběr prémiových materiálů.
Soukromí a prostor jen pro vás.
Váš kousek ráje. Jednotka má vlastní, oddělenou zahradu, která vám poskytne dostatek soukromí pro relaxaci, grilování s přáteli nebo dětské hry. Zapomeňte na hlučné sousedy a užijte si klid a výhledy do přírody, který si zasloužíte. Viladům tvoří pouhé tři j
|
| |||||||||||||||||||||||||||||||
Kontaktovat inzerenta emailem
Kontaktovat emailem může pouze ověřený uživatel.
Ověření je zdarma.
Vaše telefonní číslo *
Kontaktovat emailem může pouze ověřený uživatel.
Ověření je zdarma.
Vaše telefonní číslo *









