Prodej pozemek Bydlení, 944㎡
- [16.1. 2026]Smazat/ Upravit/ Topovat


















Dovoluji si vám představit nabídku prodeje rovinatého stavebního pozemku v osobním vlastnictví o rozloze 944 m2 ve městě Dvůr Králové nad Labem.
Pozemek se nachází v klidné lokalitě, 1,5 km od centra města, kde je zajištěna kompletní infrastruktura. Dle územního plánu je pozemek pod označením SK (plochy smíšené, obytné, komerční), kdy je jeho výhodou možnost velké zastavěnosti. Na pozemku je přivedena elektřina a rovněž hotová přípojka na vodu. Dle rozhodnutí města Dvůr Králové nad Labem zde proběhne v roce 2026 výstavba kanalizace. Pozemek je napojen na obecní cestu.
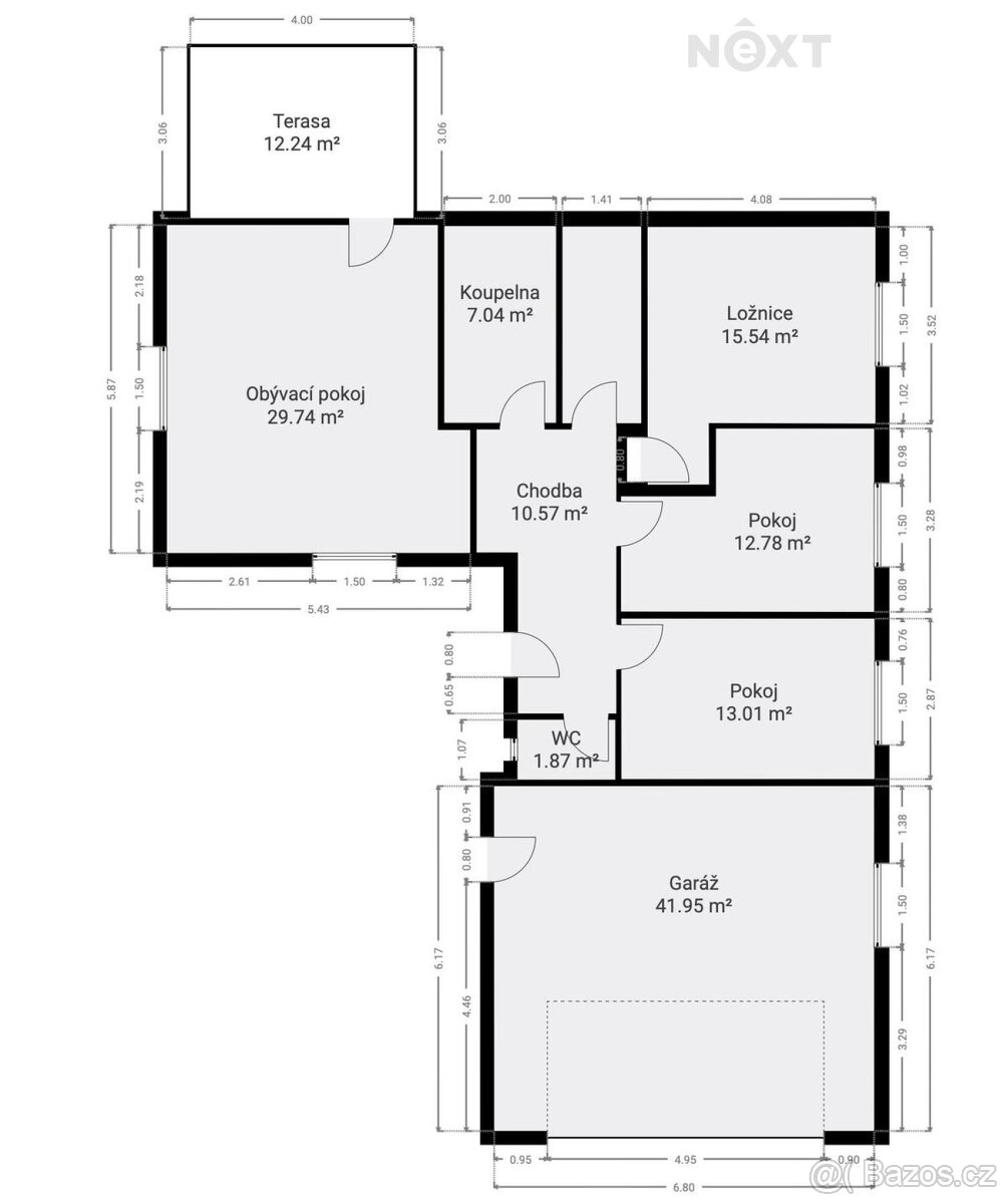
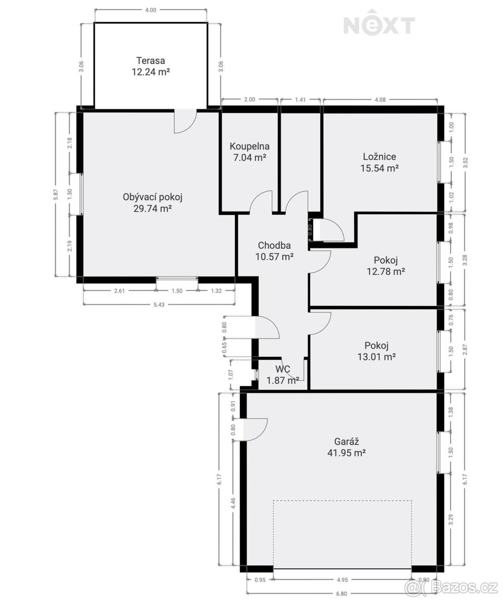
Velkou výhodou je, že v ceně pozemku je již vyhotovený projekt přízemního rodinného domu o velikosti 4+kk, zastavěnou plochou 172, 8 m2, s garáží pro dvě osobní vozidla a neprůchozími pokoji. Pouze u nás vám zajistíme moderní družstevní financování až na 35 let, bez ohledu na věk a prokazování příjmů, či nutnosti předkládat daňové přiznání (u podnikatelů). Zeptejte se nás a bydlete chytře. Uvidíme se na prohlídce. Pro komunikaci uvádějte evidenční číslo zakázky N111302.
Pozemek se nachází v klidné lokalitě, 1,5 km od centra města, kde je zajištěna kompletní infrastruktura. Dle územního plánu je pozemek pod označením SK (plochy smíšené, obytné, komerční), kdy je jeho výhodou možnost velké zastavěnosti. Na pozemku je přivedena elektřina a rovněž hotová přípojka na vodu. Dle rozhodnutí města Dvůr Králové nad Labem zde proběhne v roce 2026 výstavba kanalizace. Pozemek je napojen na obecní cestu.
Velkou výhodou je, že v ceně pozemku je již vyhotovený projekt přízemního rodinného domu o velikosti 4+kk, zastavěnou plochou 172, 8 m2, s garáží pro dvě osobní vozidla a neprůchozími pokoji. Pouze u nás vám zajistíme moderní družstevní financování až na 35 let, bez ohledu na věk a prokazování příjmů, či nutnosti předkládat daňové přiznání (u podnikatelů). Zeptejte se nás a bydlete chytře. Uvidíme se na prohlídce. Pro komunikaci uvádějte evidenční číslo zakázky N111302.
|
| |||||||||||||||||||||||||||||||
Kontaktovat inzerenta emailem
Kontaktovat emailem může pouze ověřený uživatel.
Ověření je zdarma.
Vaše telefonní číslo *
Kontaktovat emailem může pouze ověřený uživatel.
Ověření je zdarma.
Vaše telefonní číslo *