Prodej bytu 1+kk 44 m², Praha - Liboc, ev.č. 01149
- [29.1. 2026]Smazat/ Upravit/ Topovat














Ev.č. 01149
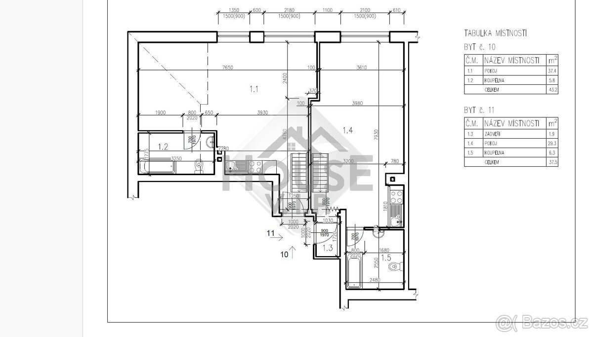
Nabízíme exkluzivně mezonetový byt 1+kk o celkové výměře 44 m2 v družstevním vlastnictví se splacenou anuitou a jižní orientací v klidné lokalitě Prahy 6. Byt se nachází ve 3 podlaží bez výtahu. Dispozice 1+kk v mezonetovém uspořádání je kreativní výzvou pro dokonalé využití prostoru. Na hlavní obytný prostor o výměře 37 m2 se vstupem do patra, která má 7 m2, navazuje kuchyňský kout a koupelna s WC. Součástí bytu je zádveří s plynovým kotlem. Hlavní prostor má plovoucí podlahy, ostatní prostory mají dlažbu s podlahovým topením, okna plastová.
Dům je cihlový z roku 1948 ve výborném stavu. Blízké okolí nabízí nákupní a restaurační možnosti, dětské hřiště i velmi dobrou dostupnost MHD - 3 minuty na metro Veleslavín a blízkost letiště Ruzyně i skvělé parkovací možnosti. Pro další období připravujeme k prodeji vedlejší byt 1+kk, který bude možné s nabízeným bytem spojit.
Družstvo souhlasí s vybudováním pohodlné střešní terasy. Byt bude po dohodě s novým družstevníkem vybaven novou kuchyní a plovoucími podlahami.
Na rok 2026 je plánována možnost odkupu bytu do OV.
En. náročnost b.: G - Mimořádně nehospodárná
Cena: včetně provize.
Nabízíme exkluzivně mezonetový byt 1+kk o celkové výměře 44 m2 v družstevním vlastnictví se splacenou anuitou a jižní orientací v klidné lokalitě Prahy 6. Byt se nachází ve 3 podlaží bez výtahu. Dispozice 1+kk v mezonetovém uspořádání je kreativní výzvou pro dokonalé využití prostoru. Na hlavní obytný prostor o výměře 37 m2 se vstupem do patra, která má 7 m2, navazuje kuchyňský kout a koupelna s WC. Součástí bytu je zádveří s plynovým kotlem. Hlavní prostor má plovoucí podlahy, ostatní prostory mají dlažbu s podlahovým topením, okna plastová.
Dům je cihlový z roku 1948 ve výborném stavu. Blízké okolí nabízí nákupní a restaurační možnosti, dětské hřiště i velmi dobrou dostupnost MHD - 3 minuty na metro Veleslavín a blízkost letiště Ruzyně i skvělé parkovací možnosti. Pro další období připravujeme k prodeji vedlejší byt 1+kk, který bude možné s nabízeným bytem spojit.
Družstvo souhlasí s vybudováním pohodlné střešní terasy. Byt bude po dohodě s novým družstevníkem vybaven novou kuchyní a plovoucími podlahami.
Na rok 2026 je plánována možnost odkupu bytu do OV.
En. náročnost b.: G - Mimořádně nehospodárná
Cena: včetně provize.
|
| |||||||||||||||||||||||||||||||
Kontaktovat inzerenta emailem
Kontaktovat emailem může pouze ověřený uživatel.
Ověření je zdarma.
Vaše telefonní číslo *
Kontaktovat emailem může pouze ověřený uživatel.
Ověření je zdarma.
Vaše telefonní číslo *