Zděný RD ZIRKON SUPER s TČ, 80 m2+ terasa 27 m2
- [5.2. 2026]Smazat/ Upravit/ Topovat








Firma JOMAKOV-STAV, s. r. o. nabízí výstavbu nízkoenergetického velmi úsporného zděného rodinného domku – bungalovu za cenu 3 350 000,- Kč včetně DPH (aktualizace ceny ke dni 1.7. 2024) bez pozemku v rámci ostravského, opavského, frýdecko-místeckého nebo karvinského regionu.
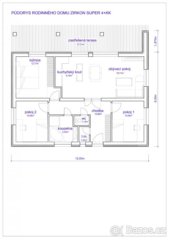
Jedná se o moderní dům střední kategorie velikosti 4+kk, s užitnou plochou 80 m2 doplněný velkou zastřešenou terasou o ploše cca 27 m2 pro chvíle odpočinku. Dům je zděný z cihel HELUZ zastřešený sedlovou střechou se střešní krytinou Blachotrapez, okna i dveře jsou z pětikomorového profilu s izolačním trojsklem. Objekt má tři pokoje se samostatnými vstupy z chodby, dále prostorný obývací pokoj propojený s kuchyní, prostornou koupelnu s vanou i sprchovým koutem, samostatné WC, technickou místnost. Dům je vytápěn teplovodním podlahovým topením s tepelným čerpadlem firmy NIBE.
Jedná se o moderní dům střední kategorie velikosti 4+kk, s užitnou plochou 80 m2 doplněný velkou zastřešenou terasou o ploše cca 27 m2 pro chvíle odpočinku. Dům je zděný z cihel HELUZ zastřešený sedlovou střechou se střešní krytinou Blachotrapez, okna i dveře jsou z pětikomorového profilu s izolačním trojsklem. Objekt má tři pokoje se samostatnými vstupy z chodby, dále prostorný obývací pokoj propojený s kuchyní, prostornou koupelnu s vanou i sprchovým koutem, samostatné WC, technickou místnost. Dům je vytápěn teplovodním podlahovým topením s tepelným čerpadlem firmy NIBE.
|
| |||||||||||||||||||||||||||||||
Kontaktovat inzerenta emailem
Kontaktovat emailem může pouze ověřený uživatel.
Vaše telefonní číslo *
Kontaktovat emailem může pouze ověřený uživatel.
Vaše telefonní číslo *
Podobné inzeráty
ZDĚNÝ RD GRANIT 4+KK s pracovnou, 88 m2 - [19.2. 2026]Firma JOMAKOV-STAV, s. r. o. nabízí výstavbu nízkoenergetického zděného rodinného domku – bungalovu za cenu 3 490 000,- Kč (aktualizace ceny ke dni 1.7. 2024) včetně DPH bez pozemku v rámci ostravského, opavského, frýdecko-místeckého nebo karvinskéh ...
3 490 000 Kč
Karviná
735 81
735 81
275 x
Označit špatný inzerát Chybnou kategorii Ohodnotit uživatele Smazat/Upravit/Topovat
Zděný rodinný dům BERYL 4+KK s tepelným čerpadlem, 108 m2 - [2.2. 2026]Firma JOMAKOV-STAV, s. r. o. nabízí výstavbu nízkoenergetického velmi úsporného zděného rodinného domku – bungalovu za cenu 3 850 000,- Kč včetně DPH (aktualizace ceny ke dni 1.7. 2024) bez pozemku v rámci ostravského, opavského, frýdecko-místeckého ...
3 850 000 Kč
Karviná
735 81
735 81
410 x
Označit špatný inzerát Chybnou kategorii Ohodnotit uživatele Smazat/Upravit/Topovat