Prodej komerční Obchodní prostory, 139㎡
- [6.2. 2026]Smazat/ Upravit/ Topovat





























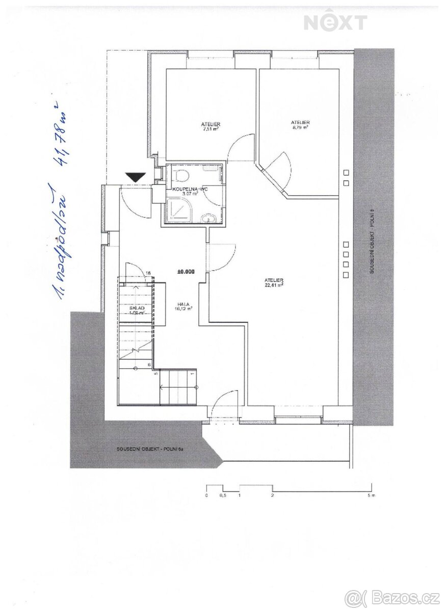
Výhradní prodej domu v Plzni ve vilové čtvrti na Slovanech. Proběhla zde kompletní přestavba celého domu. Byly provedeny nové rozvody vody, elektřiny, plynu, nové podlahy, střecha, výměna dveří, obložek dveří, schodiště, nová plastová okna, zateplení domu (tl. 10 cm) apod. PENB : D. Dům je 3-podlažní, má zastavěnou plochu 77 m2 a jsou v něm 4 samostatné bytové jednotky. V přízemí se nachází byt 3kk (41,78 m2). V 1.patře je byt 3kk (47,46 m2) s terasou 4 x 2 m a ve 2. patře jsou 2 byty 1kk (23,7 m2 a 25,67 m2) . Všechny byty jsou bez nábytku, tedy i bez kuchyně. Všechny mají přípravu pro instalaci kuchyně, koupelnu s umyvadlem, sprchový kout, WC, přípravu pro připojení pračky a vyhřívaný žebříkový sušák. Rozvod teplé vody je zajištěn samostatnými bojlery. Na chodbě jsou 2 technické místnosti. V jedné z nich je instalován společný plynový kotel. Další úložný prostor je v podkroví. Dětský kočárek lze ponechat v přízemí pod schodištěm, cyklistická kola a ostatní lze odkládat pod terasu na zadní zahradu. "Přední zahrada" (vydlážděné garážové stání pro min. 2 osobní automobily) má 51 m2 a vjezd je umožněn přes elektrická automatická vrata. Zadní zahrada (vnitroblok) s 205 m2 umožní klidný odpočinek a je zde možno zřídit i venkovní sezení. Dům nevyžaduje žádné další investice. Je vhodný nejen k pronájmu jednotlivých bytů k bydlení, ale případně je možné využít přízemí jako kanceláře, ordinaci apod. Stanice MHD je od domu vzdálena cca 4 minuty. Cena 15 490 000,-Kč. Pro komunikaci uvádějte evidenční číslo zakázky N111294.
|
| |||||||||||||||||||||||||||||||
Kontaktovat inzerenta emailem
Kontaktovat emailem může pouze ověřený uživatel.
Ověření je zdarma.
Vaše telefonní číslo *
Kontaktovat emailem může pouze ověřený uživatel.
Ověření je zdarma.
Vaše telefonní číslo *








