byt 3+kk 58m2
- [9.2. 2026]Smazat/ Upravit/ Topovat
















Platí do smazání. Pro domluvu volejte na: +420 603 595 942
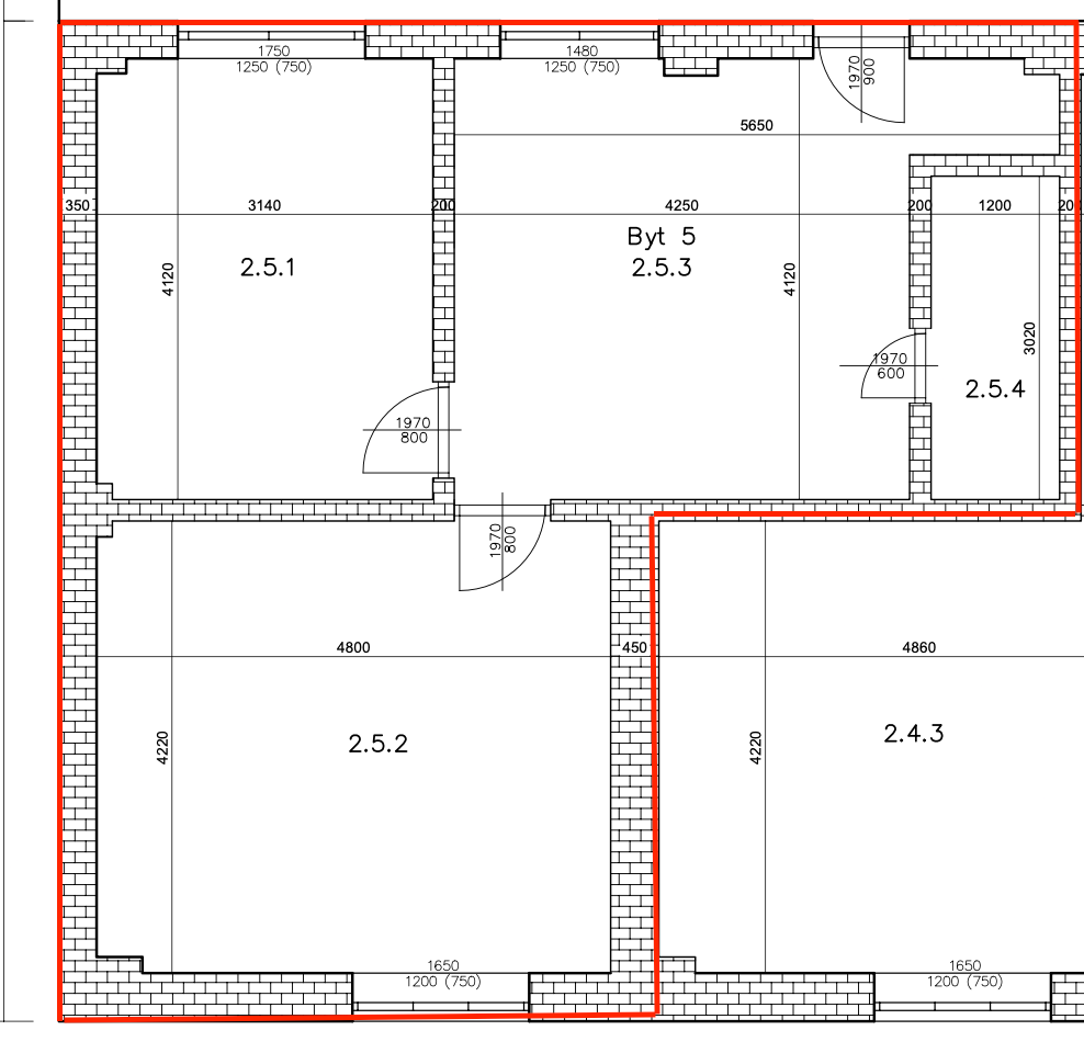
Nabízíme bytovou jednotku 3+kk v rodinném domě v obci Medlov, Zborovice o velikosti 58m2. Nabízený byt se nachází v 1. patře s výhledem do dvora na západní stranu a klidné ulice na východní stranu. Vstupní místnost zahrnuje kuchyňský kout a prostornou místnost, která může sloužit jako jídelna. V zádveří se nachází prostor pro pračku. Z této místnosti vcházíte do dvou prostorných samostatných pokojů, které mohou sloužit jako ložnice, případně jako obývací pokoj či pracovna. Koupelna má prostorný sprchový kout a WC je její součástí. Vysoký standard provedení zahrnuje mimo jiné nové podlahy, nové obklady a dlažbu v koupelně, vybavenou kuchyň, nová plastová okna. Na dvoře můžete posedět se svými novými sousedy, případně využít rozlehlé zahrady na cvičení, pěstování rajčátek, skákání na trampolíně.
Z jablek, švestek a vlašských ořechů ze zahrady si můžete připravit koláč. Ideální bydlení pro rodinu s kladným vztahem k přírodě a klidnému bydlení na vesnici.
Nájemné 9.500,- + 500 internet
+ zálohy na vodu a topení -> el. přepis na sebe. Při podpisu smlouvy kauce v ceně dvou nájmů.
Pro domluvu volejte na: +420 603 595 942 nabo pište na: gondek.system@gmail.com
Bytová jednotka má energetické provedení třídy G (není k dispozici energetický štítek. Jedná se o klidnou lokalitu v dostupné vzdálenosti od Kroměříže, Zlína a Prostějova. Nabízíme moderní bydlení v klidné a přitom atraktivní lokalitě Medlov, Zborovice, pouhých 15 min autem do Kroměříže. Ve vesnici se nachází supermarket Coop. Okolí nabízí klidné a bezpečné prostředí a příjemné cesty, které vybízejí k procházkám. Lokalita spojuje klidné bydlení v zeleni se všemi výhodami vesnického bydlení.
Nabízíme bytovou jednotku 3+kk v rodinném domě v obci Medlov, Zborovice o velikosti 58m2. Nabízený byt se nachází v 1. patře s výhledem do dvora na západní stranu a klidné ulice na východní stranu. Vstupní místnost zahrnuje kuchyňský kout a prostornou místnost, která může sloužit jako jídelna. V zádveří se nachází prostor pro pračku. Z této místnosti vcházíte do dvou prostorných samostatných pokojů, které mohou sloužit jako ložnice, případně jako obývací pokoj či pracovna. Koupelna má prostorný sprchový kout a WC je její součástí. Vysoký standard provedení zahrnuje mimo jiné nové podlahy, nové obklady a dlažbu v koupelně, vybavenou kuchyň, nová plastová okna. Na dvoře můžete posedět se svými novými sousedy, případně využít rozlehlé zahrady na cvičení, pěstování rajčátek, skákání na trampolíně.
Z jablek, švestek a vlašských ořechů ze zahrady si můžete připravit koláč. Ideální bydlení pro rodinu s kladným vztahem k přírodě a klidnému bydlení na vesnici.
Nájemné 9.500,- + 500 internet
+ zálohy na vodu a topení -> el. přepis na sebe. Při podpisu smlouvy kauce v ceně dvou nájmů.
Pro domluvu volejte na: +420 603 595 942 nabo pište na: gondek.system@gmail.com
Bytová jednotka má energetické provedení třídy G (není k dispozici energetický štítek. Jedná se o klidnou lokalitu v dostupné vzdálenosti od Kroměříže, Zlína a Prostějova. Nabízíme moderní bydlení v klidné a přitom atraktivní lokalitě Medlov, Zborovice, pouhých 15 min autem do Kroměříže. Ve vesnici se nachází supermarket Coop. Okolí nabízí klidné a bezpečné prostředí a příjemné cesty, které vybízejí k procházkám. Lokalita spojuje klidné bydlení v zeleni se všemi výhodami vesnického bydlení.
|
| |||||||||||||||||||||||||||||||
Kontaktovat inzerenta emailem
Kontaktovat emailem může pouze ověřený uživatel.
Ověření je zdarma.
Vaše telefonní číslo *
Kontaktovat emailem může pouze ověřený uživatel.
Ověření je zdarma.
Vaše telefonní číslo *