Dum 6×6 na patro ze SIP panelů
- [11.2. 2026]Smazat/ Upravit/ Topovat



























Tento dvoupatrový dům o rozměrech 6×6 m je ideální pro trvalé bydlení, rekreační účely nebo jako kancelářský prostor. Je navržen s důrazem na moderní styl, funkčnost a energetickou úspornost díky konstrukci ze SIP panelů.
Technické parametry:
Materiál konstrukce: SIP panely zajišťující vysokou tepelnou izolaci.
Okna: trojsklo, které poskytuje vynikající izolační vlastnosti, snižuje tepelné ztráty a hluk z okolí.
Vchodové dveře: plastové, odolné vůči počasí a s dobrou bezpečnostní ochranou.
Kompletní elektroinstalace v celém domě.
Dispozice domu
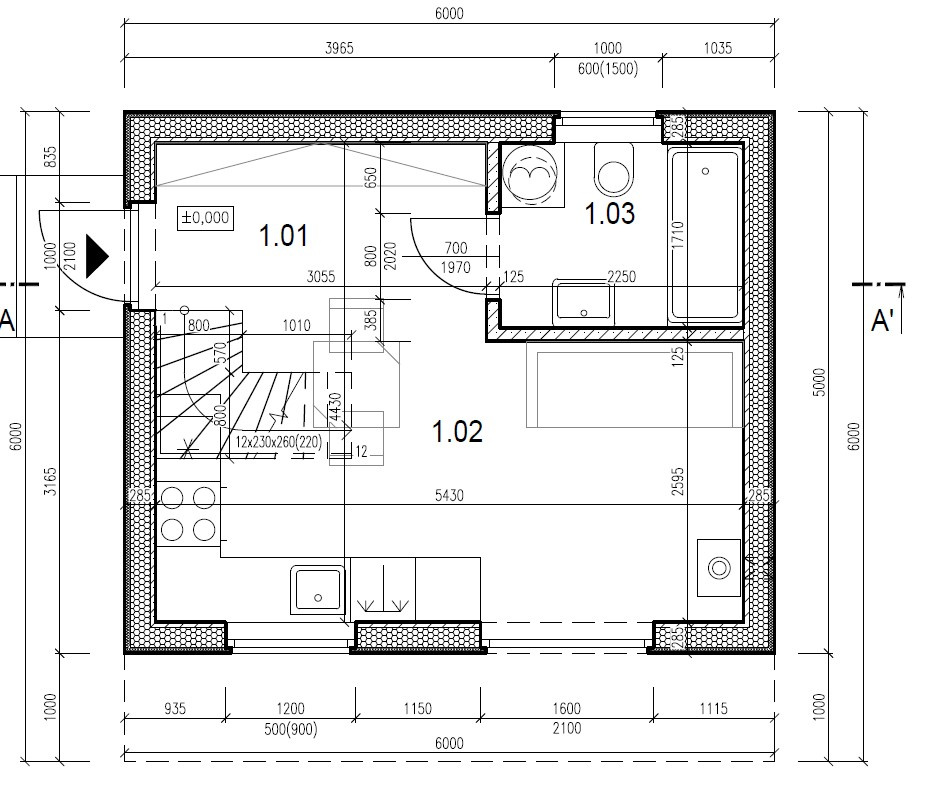
Přízemí 5x6 m:
Kuchyň s obývákem: Prakticky propojený prostor pro přípravu jídla a odpočinek.
Chodba: Obsahuje šatní skříňku, ideální pro uložení bot a kabátů.
Koupelna: Vybavená moderním závěsným WC, vanou, umyvadlem a pračkou.
Vstup: Plastové vchodové dveře zajišťují bezpečnost a snadnou údržbu.
Balkonové dveře: Vedou přímo na terasu, což nabízí ideální místo pro relaxaci nebo posezení s přáteli.
Patro 6x6 m:
Dva pokoje: Světlé a prostorné místnosti, vhodné jako ložnice, dětské pokoje nebo domácí kancelář.
Vybavení a technické řešení
Okna: Kvalitní trojsklo zajišťuje vynikající tepelnou a zvukovou izolaci.
Koupelna: Moderní vybavení, včetně vany, zajišťuje pohodlí.
Elektroinstalace: Kompletní a připravená k okamžitému použití.
SIP panely: Poskytují vynikající izolační vlastnosti a zajišťují nízké náklady na vytápění.
Výhody domu
Energetická úspornost: Díky konstrukci ze SIP panelů a trojsklu výrazně ušetříte na energiích.
Rychlá výstavba: Dům je možné postavit v rekordním čase.
Flexibilita: Velikost a rozložení pokojů vyhovují potřebám rodiny nebo jednotlivce. Prostor je efektivně využit, přízemí je zaměřené na společenskou zónu, patro na soukromí.
Moderní design: Balkonové dveře a terasa vytvářejí příjemný obytný prostor uvnitř i venku.
Kvalitní materiály: SIP panely a moderní vybavení zaručují dlouhou životnost.
Dům kombinuje moderní technologie s praktickým designem a nabízí ideální řešení pro každého, kdo hledá pohodlné bydlení.
Obytné místnosti: 3+kk
Užitná plocha: 44 m²
Zastavěná plocha: 30 m²
Výška hřebene střechy: 5 m
Sklon střechy: 30°
V ceně mate: Projektovou dokumentace
Stavíme i na pozemku ve svahu
Technické parametry:
Materiál konstrukce: SIP panely zajišťující vysokou tepelnou izolaci.
Okna: trojsklo, které poskytuje vynikající izolační vlastnosti, snižuje tepelné ztráty a hluk z okolí.
Vchodové dveře: plastové, odolné vůči počasí a s dobrou bezpečnostní ochranou.
Kompletní elektroinstalace v celém domě.
Dispozice domu
Přízemí 5x6 m:
Kuchyň s obývákem: Prakticky propojený prostor pro přípravu jídla a odpočinek.
Chodba: Obsahuje šatní skříňku, ideální pro uložení bot a kabátů.
Koupelna: Vybavená moderním závěsným WC, vanou, umyvadlem a pračkou.
Vstup: Plastové vchodové dveře zajišťují bezpečnost a snadnou údržbu.
Balkonové dveře: Vedou přímo na terasu, což nabízí ideální místo pro relaxaci nebo posezení s přáteli.
Patro 6x6 m:
Dva pokoje: Světlé a prostorné místnosti, vhodné jako ložnice, dětské pokoje nebo domácí kancelář.
Vybavení a technické řešení
Okna: Kvalitní trojsklo zajišťuje vynikající tepelnou a zvukovou izolaci.
Koupelna: Moderní vybavení, včetně vany, zajišťuje pohodlí.
Elektroinstalace: Kompletní a připravená k okamžitému použití.
SIP panely: Poskytují vynikající izolační vlastnosti a zajišťují nízké náklady na vytápění.
Výhody domu
Energetická úspornost: Díky konstrukci ze SIP panelů a trojsklu výrazně ušetříte na energiích.
Rychlá výstavba: Dům je možné postavit v rekordním čase.
Flexibilita: Velikost a rozložení pokojů vyhovují potřebám rodiny nebo jednotlivce. Prostor je efektivně využit, přízemí je zaměřené na společenskou zónu, patro na soukromí.
Moderní design: Balkonové dveře a terasa vytvářejí příjemný obytný prostor uvnitř i venku.
Kvalitní materiály: SIP panely a moderní vybavení zaručují dlouhou životnost.
Dům kombinuje moderní technologie s praktickým designem a nabízí ideální řešení pro každého, kdo hledá pohodlné bydlení.
Obytné místnosti: 3+kk
Užitná plocha: 44 m²
Zastavěná plocha: 30 m²
Výška hřebene střechy: 5 m
Sklon střechy: 30°
V ceně mate: Projektovou dokumentace
Stavíme i na pozemku ve svahu
|
| |||||||||||||||||||||||||||||||
Kontaktovat inzerenta emailem
Kontaktovat emailem může pouze ověřený uživatel.
Vaše telefonní číslo *
Kontaktovat emailem může pouze ověřený uživatel.
Vaše telefonní číslo *
Podobné inzeráty
Modulovy dum Barnhaus 78 m2 na klič pasivni 2+KK - [29.3. 2026]Nabízíme vám Barnhaus 13,5x5,4x4,1 m. 2+KK
Dum se skládá ze 2 modulu 13x2,7x4,1 m
Cena na klič 2 350 000 Kč včetně DPH. Bez dopravy.
Na objednávku. Termín dodáni - cca 90 pracovních dnu.
2 350 000 Kč
Mělník
277 06
277 06
124 x
Označit špatný inzerát Chybnou kategorii Ohodnotit uživatele Smazat/Upravit/Topovat
Rodinný dum 80 m2 10x8 m komplet na klíč - [21.3. 2026]Modulová dřevostavba 80 m2 10x8 m na klíč
Rodinný dum jen za 3 095 000 Kč vč. DPH
Nepřeplácejte za drahé dřevostavby.
Od nás získáte kompletně připravený dům ihned k nastěhování.
cena zahrnuje:
DPH 12%
pátky (na rovinatém pozemku)
doprav ...
3 095 000 Kč
Mělník
277 06
277 06
348 x
Označit špatný inzerát Chybnou kategorii Ohodnotit uživatele Smazat/Upravit/Topovat
Modulovy dum 40 m2 na klič za 1 199 000 Kč - [4.3. 2026]Modulový kompaktní a elegantní dům 40 m² na klíč
2+kk pro pár, jednotlivce či hosty. Stylový, světlý a ideální pro přírodu nebo zahradu.
💰 Jen za 1 199 000 Kč s DPH
🏡 Dispozice:
🛏️ Ložnice – 9,5 m²
🛋️ Obývák – 16 m²
🚿 Koupelna – 4 m²
Zasta ...
1 199 000 Kč
Mělník
277 06
277 06
536 x
Označit špatný inzerát Chybnou kategorii Ohodnotit uživatele Smazat/Upravit/Topovat
Modulovy dum na miru - [18.2. 2026]Nabízíme moderní, energeticky úsporné rodinné domy s rychlou výstavbou a výborným poměrem ceny a kvality. Naše domy jsou navrženy pro komfortní bydlení a vyráběny v České republice.
✔ energetická třída B – velmi úsporná
✔ moderní design a praktické ...
2 200 000 Kč
Mělník
277 06
277 06
684 x
Označit špatný inzerát Chybnou kategorii Ohodnotit uživatele Smazat/Upravit/Topovat






