Prodej bytu 2+kk V.Outraty Prostějov 37,85m2
- [12.2. 2026]Smazat/ Upravit/ Topovat


















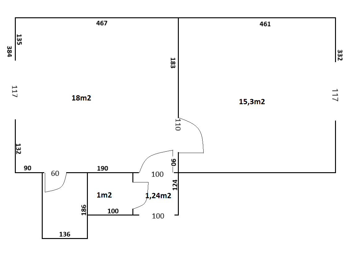
Prodám byt v osobním vlastnictví 2+kk užitná plocha 37,85m2 v třetím podlaží bytového domu. Samostatná koupelna s vanou a samostatné WC. K bytu náleží sklepní koje. Platová okna. Vytápění plynem Waw a ohřev TUV el. bojler.
Prodává majitel zatím bez RK, to znamená bez provize a tedy dalších nákladů pro kupujícího.
V bezprostředním okolí se nachází kompletní občanská vybavenost, včetně obchodů, služeb a zeleně. Ideální bydlení pro jednotlivce, pár nebo jako investice.
RK prosím nevolat. Děkuji.
Prodává majitel zatím bez RK, to znamená bez provize a tedy dalších nákladů pro kupujícího.
V bezprostředním okolí se nachází kompletní občanská vybavenost, včetně obchodů, služeb a zeleně. Ideální bydlení pro jednotlivce, pár nebo jako investice.
RK prosím nevolat. Děkuji.
|
| |||||||||||||||||||||||||||||||
Kontaktovat inzerenta emailem
Kontaktovat emailem může pouze ověřený uživatel.
Ověření je zdarma.
Vaše telefonní číslo *
Kontaktovat emailem může pouze ověřený uživatel.
Ověření je zdarma.
Vaše telefonní číslo *