Pronájem prostoru pro dílnu / sklad 362 m2
- [13.2. 2026]Smazat/ Upravit/ Topovat




Prostory pro sklad nebo dílnu. Přímo u dálnice D10 k pronájmu podle potřeby a dohody. Čistá vytápěná plocha, výška přízemí 4 m. Výška v patře - šikmý strop od 2,4 m do 5 m. Do patra kovové schodiště a průmyslový výtah. Příkon 400V / 40A. Přípojky elektro možno upravit po dohodě. Sociální zázemí k dispozici. Vratná kauce po dohodě podle výpovědní lhůty (za 1 měsíc výpovědní lhůty = částka měsíčního nájmu). K dispozici podle dohody.
K dispozici:
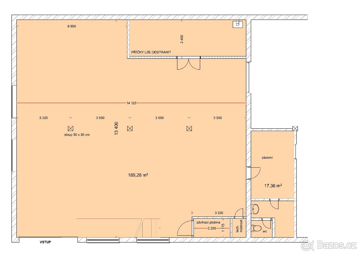
1) Prostor v přízemí 206,5 m2 s přístupem k sociálnímu zázemí. Z přízemí vede schodiště do 1. parta. Součástí je průmyslový výtah/plošina do 1. patra. Vstup vraty.
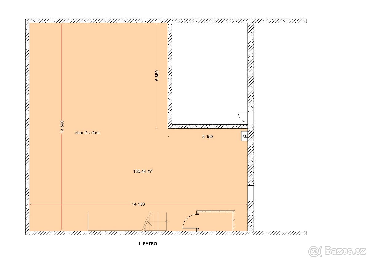
2) Prostor v 1. patře 155,5 m2.
Cena nebytového prostoru celkem 55 000,- (152,- měsíčně za m2). V případě plátce DPH +21%.
K dispozici:
1) Prostor v přízemí 206,5 m2 s přístupem k sociálnímu zázemí. Z přízemí vede schodiště do 1. parta. Součástí je průmyslový výtah/plošina do 1. patra. Vstup vraty.
2) Prostor v 1. patře 155,5 m2.
Cena nebytového prostoru celkem 55 000,- (152,- měsíčně za m2). V případě plátce DPH +21%.
|
| |||||||||||||||||||||||||||||||
Kontaktovat inzerenta emailem
Kontaktovat emailem může pouze ověřený uživatel.
Ověření je zdarma.
Vaše telefonní číslo *
Kontaktovat emailem může pouze ověřený uživatel.
Ověření je zdarma.
Vaše telefonní číslo *