Byt 1kk Louny
- [14.2. 2026]Smazat/ Upravit/ Topovat





















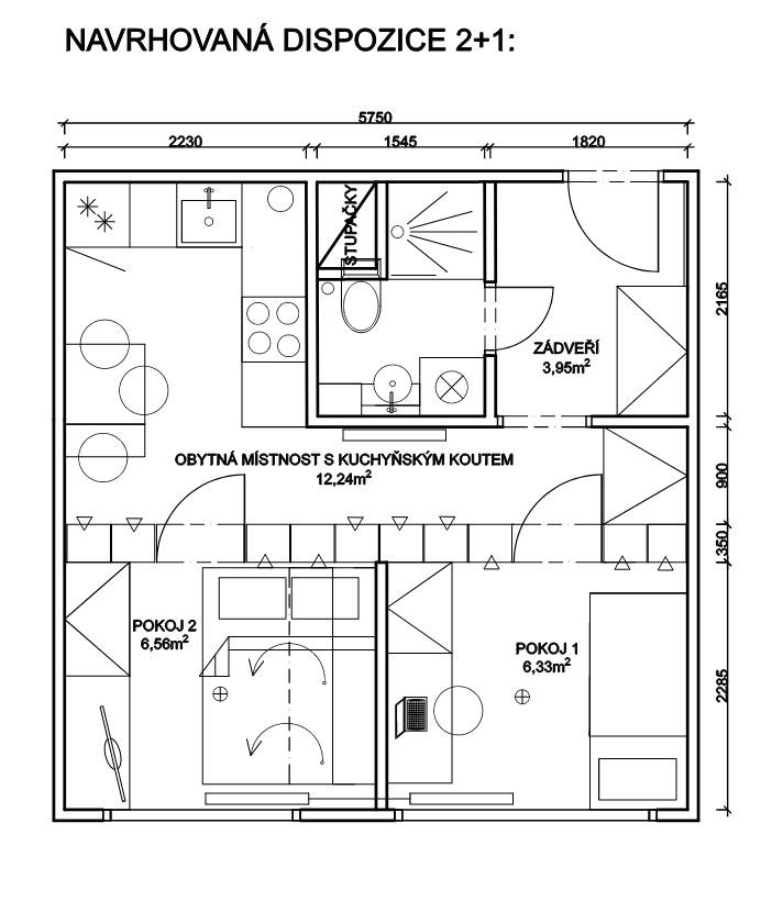
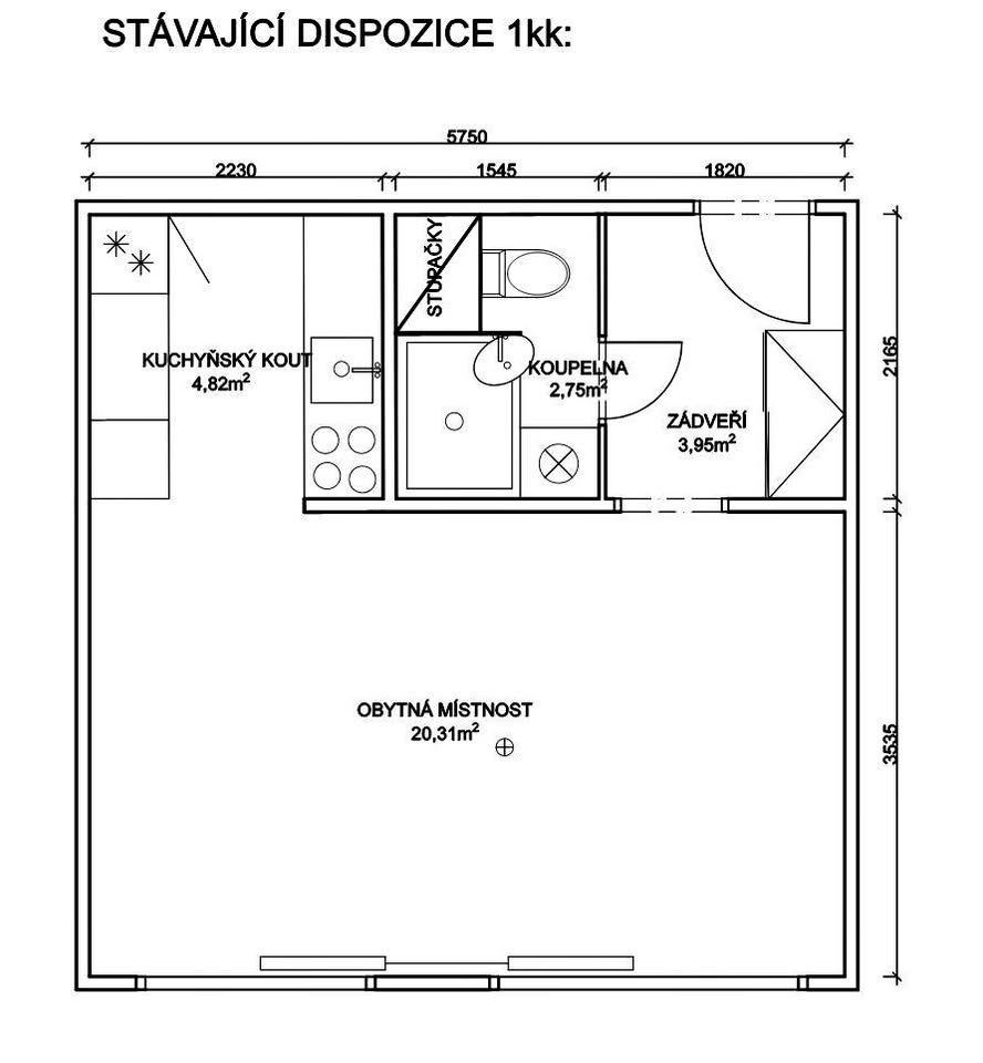
Nabízím ke koupi světlý byt 1kk v ulici Lipová v Lounech o celkové výměře 32 m2 v podílovém vlastnictví (vlastním podíl na domě, který odpovídá bytu a příslušenství) Byt je v předrekonstrukčním stavu. Je orientován na jihozápadní stranu a nachází se ve 4. podlaží panelového domu. Dům je nově vybaven vnějšími stínícími roletami. K bytu náleží komora přístupná ze společné chodby a sklepní kóje. Parkování před domem na veřejném stání. Byt je možné přepažit a vytvořit tak dispozici 2+1. Vhodný jako startovní byt.
Požadovaná cena 2 100 000,- kč nebo vyšší nabídce.
Požadovaná cena 2 100 000,- kč nebo vyšší nabídce.
|
| |||||||||||||||||||||||||||||||
Kontaktovat inzerenta emailem
Kontaktovat emailem může pouze ověřený uživatel.
Ověření je zdarma.
Vaše telefonní číslo *
Kontaktovat emailem může pouze ověřený uživatel.
Ověření je zdarma.
Vaše telefonní číslo *
