Prodej rodinného domu v Jihlavě, ul. Lípová
- [18.2. 2026]Smazat/ Upravit/ Topovat






























Dovolujeme si vám nabídnout mimořádnou nemovitost v Jihlavě, která se na trhu objevuje jen zcela výjimečně.
Již při prvním seznámení je zřejmé, že se jedná o dům s nadstandardním potenciálem, vhodný jak pro komfortní bydlení, tak i jako místo k podnikatelskému využití.
Dům prošel velmi kvalitní a finančně náročnou rekonstrukcí, realizovanou skutečně od základu. Disponuje novou střechou včetně krovu, promyšlenou přístavbou bočního křídla a kompletně novými rozvody elektřiny v mědi, vody i odpadů v plastu. Samozřejmostí je zateplení obálky domu i půdních prostor. Významným benefitem je fotovoltaická elektrárna s bateriovým úložištěm, která zajišťuje nízké provozní náklady.
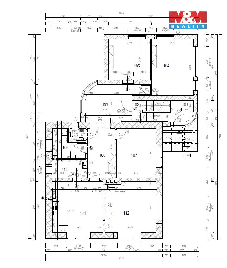
Dominantou domu je velkoryse řešené přízemí s hlavním obytným prostorem, prostornou kuchyní navazující na obývací část, třemi samostatnými ložnicemi a architektonicky zajímavým vstupním atriem přivádějícím do interiéru dostatek denního světla.
Lokalita: Lípová, Horní Kosov
test na ohlas na nemovitost
Evidenční číslo: 923163
Energetická náročnost : Třída B - Úsporná
Již při prvním seznámení je zřejmé, že se jedná o dům s nadstandardním potenciálem, vhodný jak pro komfortní bydlení, tak i jako místo k podnikatelskému využití.
Dům prošel velmi kvalitní a finančně náročnou rekonstrukcí, realizovanou skutečně od základu. Disponuje novou střechou včetně krovu, promyšlenou přístavbou bočního křídla a kompletně novými rozvody elektřiny v mědi, vody i odpadů v plastu. Samozřejmostí je zateplení obálky domu i půdních prostor. Významným benefitem je fotovoltaická elektrárna s bateriovým úložištěm, která zajišťuje nízké provozní náklady.
Dominantou domu je velkoryse řešené přízemí s hlavním obytným prostorem, prostornou kuchyní navazující na obývací část, třemi samostatnými ložnicemi a architektonicky zajímavým vstupním atriem přivádějícím do interiéru dostatek denního světla.
Lokalita: Lípová, Horní Kosov
test na ohlas na nemovitost
Evidenční číslo: 923163
Energetická náročnost : Třída B - Úsporná
|
| |||||||||||||||||||||||||||||||
Kontaktovat inzerenta emailem
Kontaktovat emailem může pouze ověřený uživatel.
Ověření je zdarma.
Vaše telefonní číslo *
Kontaktovat emailem může pouze ověřený uživatel.
Ověření je zdarma.
Vaše telefonní číslo *









