NOVÁ POLIKLINIKA HRADEC KRÁLOVÉ
- [22.2. 2026]Smazat/ Upravit/ Topovat
















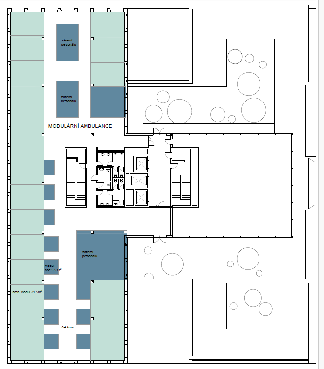
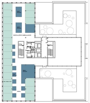
NOVÁ POLIKLINIKA HRADEC KRÁLOVÉ, ideální místo pro vaše ambulance a léčebně preventivní provozy, unikátní developerský projekt sdruženého zdravotnického zařízení, 24 000 m2 prostor v hi-tech standardech 21. století, 2 podlaží podzemního parkoviště, 100 metrů od Fakultní nemocnice, u křižovatky Mileta a městského okruhu s MHD a rychlým napojením na dálnici. Stavba má nabyté územní rozhodnutí, již probíhá projektová dokumentace na míru budoucích nájemníků. Získejte náskok před konkurencí, budete v moderním a novém a personál i vaši pacienti zde komfortně zaparkují. Zadejte si rezervaci včas, a vyberte si umístění vašeho provozu - podlaží, orientaci, počet a výměru místností a další detaily. Pozdější zájemci budou mít menší možnosti výběru, objekt se rychle zaplňuje.
|
| |||||||||||||||||||||||||||||||
Kontaktovat inzerenta emailem
Kontaktovat emailem může pouze ověřený uživatel.
Ověření je zdarma.
Vaše telefonní číslo *
Kontaktovat emailem může pouze ověřený uživatel.
Ověření je zdarma.
Vaše telefonní číslo *