prodej apartmánu 3+kk, 163,5m2, Harrachov
- [23.2. 2026]Smazat/ Upravit/ Topovat




















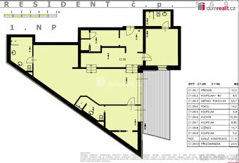
, Rádi bychom Vám představili tento krásný byt 3+kk k prodeji v oblíbené rekreační lokalitě Harrachov. Tento byt se nachází v klidné části obce, což zaručuje ideální prostředí pro relaxaci a odpočinek po náročném dni. Celková podlahová plocha bytu činí 163 m², což nabízí dostatek prostoru pro pohodlné bydlení. Byt je situován na prvním patře skeletové budovy ve velmi dobrém stavu.
Mezi hlavní výhody tohoto bytu patří prostorná terasa, ideální pro večerní relaxaci s výhledem na okolní přírodu. K dispozici je sklep, což dodává další možnosti skladování. Venkovní parkování je zahrnuto v ceně. Objekt je moderním, dvoupodlažním Grotta Spa Wellnes s recepcí, dvěmi saunami, párou, odpočívárnou, masérnou a šatnou, což poskytuje jedinečný způsob relaxace přímo ve Vašem domově. Navíc systém rekuperace jednotky zajišťuje zdravé vnitřní prostředí.
Byt se nachází v osobním vlastnictví a spadá do energetické třídy B, což znamená výhodnou energetickou náročnost. Díky tomu můžete očekávat efektivní provoz bytové jednotky. V bytě naleznete vanu, která je výbornou volbou pro milovníky dlouhých a relaxačních koupelí. Spojení do města autobusovou dopravou je zajištěno, takže i bez vlastního automobilu máte pohodlný přístup k potřebným službám a zázemí města.
Akční cena je platná při podpisu rezervační smlouvy do konce února 2026, což představuje mimořádnou příležitost ke koupi. Prohlídky jsou možné po předchozí domluvě. Pro více informací o této nemovitosti nebo sjednání prohlídky nás prosím kontaktujte nebo vyplňte níže uvedený formulář, rádi Vám pomůžeme. Ev. číslo: 651652. Energetický štítek: B
Mezi hlavní výhody tohoto bytu patří prostorná terasa, ideální pro večerní relaxaci s výhledem na okolní přírodu. K dispozici je sklep, což dodává další možnosti skladování. Venkovní parkování je zahrnuto v ceně. Objekt je moderním, dvoupodlažním Grotta Spa Wellnes s recepcí, dvěmi saunami, párou, odpočívárnou, masérnou a šatnou, což poskytuje jedinečný způsob relaxace přímo ve Vašem domově. Navíc systém rekuperace jednotky zajišťuje zdravé vnitřní prostředí.
Byt se nachází v osobním vlastnictví a spadá do energetické třídy B, což znamená výhodnou energetickou náročnost. Díky tomu můžete očekávat efektivní provoz bytové jednotky. V bytě naleznete vanu, která je výbornou volbou pro milovníky dlouhých a relaxačních koupelí. Spojení do města autobusovou dopravou je zajištěno, takže i bez vlastního automobilu máte pohodlný přístup k potřebným službám a zázemí města.
Akční cena je platná při podpisu rezervační smlouvy do konce února 2026, což představuje mimořádnou příležitost ke koupi. Prohlídky jsou možné po předchozí domluvě. Pro více informací o této nemovitosti nebo sjednání prohlídky nás prosím kontaktujte nebo vyplňte níže uvedený formulář, rádi Vám pomůžeme. Ev. číslo: 651652. Energetický štítek: B
|
| |||||||||||||||||||||||||||||||
Kontaktovat inzerenta emailem
Kontaktovat emailem může pouze ověřený uživatel.
Ověření je zdarma.
Vaše telefonní číslo *
Kontaktovat emailem může pouze ověřený uživatel.
Ověření je zdarma.
Vaše telefonní číslo *
Podobné inzeráty
Prodej, byty/3+kk, 69 m2, Harrachov , Jablonec nad Nisou [ID - [12.2. 2026]Corso Harrachov 3kk, možnost odpočtu dphCena bez DPH 13.900.000,- MOŽNOST ODPOČTU!!!
Exkluzivně představujeme bytovou jednotku na nejlepším místě v Harrachově.
Byt v projektu "Corso" leží na místě, které v Harrachově nemá konkurenci. Jediné místo v Č ...
15 985 000 Kč
Semily
512 46
512 46
119 x
Označit špatný inzerát Chybnou kategorii Ohodnotit uživatele Smazat/Upravit/Topovat
Prodej, byty/3+kk, 93 m2, Harrachov , Jablonec nad Nisou [ID - TOP - [23.2. 2026]Apartmán 3+kk s terasou, 2 garážemi a výhledem – HarrachovByt, kam se chcete vracet. 3+kk s terasou, 2 garážemi a výhledem na skokanské můstky – Harrachov
Jsou byty, které dávají smysl. A pak jsou místa, která si zamilujete. Tady v Harrachově máte o ...
11 800 000 Kč
Semily
512 46
512 46
270 x
Označit špatný inzerát Chybnou kategorii Ohodnotit uživatele Smazat/Upravit/Topovat
prodej apartmánu 3+kk, 90m2, Harrachov - Nový Svět - [1.1. 2026]BENEFIT - včetně nové kuchyňské linky a spotřebičů, garážového + povrchového stání a ski boxu., prodej exkluzivního mezonetového apartmánu 3+kk, 77,5 m² – Vitality Residence, Harrachov.
NOVĚ nabízíme příležitost garantované úrokové sazby 3,85% na ...
11 882 640 Kč
Semily
512 46
512 46
320 x
Označit špatný inzerát Chybnou kategorii Ohodnotit uživatele Smazat/Upravit/Topovat
prodej apartmánu 4+kk, 120m2, Harrachov - Nový Svět - [29.12. 2025]BENEFIT - Nová kuchyňská linka včetně spotřebičů, garážové a povrchové parkovací stání a ski-boxu., prodej nadstandardního, světlého a vzdušného mezonetového apartmánu o dispozici 4+kk a celkové užitné ploše 105 m², který se nachází v exkluzivním pro ...
15 385 600 Kč
Semily
512 46
512 46
331 x
Označit špatný inzerát Chybnou kategorii Ohodnotit uživatele Smazat/Upravit/Topovat
prodej apartmánu 2+kk, 67m2, Harrachov - Nový Svět - [29.12. 2025]Včetně povrchového, parkovacího stání. Včetně právního, realitního a kompletního servisu., Nabízíme k prodeji nadstandardní, světlý a vzdušný apartmán o dispozici 2+kk a celkové užitné ploše 56 m², který se nachází v exkluzivním projektu Vitality Res ...
8 982 000 Kč
Semily
512 46
512 46
310 x
Označit špatný inzerát Chybnou kategorii Ohodnotit uživatele Smazat/Upravit/Topovat