Prodej bytu 3+kk
- [23.2. 2026]Smazat/ Upravit/ Topovat





























Nabízíme postoupení nového družstevního bytu 3+kk v projektu Kaskády Barrandov (dům N) úspěšného developera FINEP v ulici U Náhonu, Praha 5 - Hlubočepy.
Předpoklad kolaudace 05/2026.
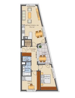
Bytová jednotka 3+kk o velikosti 78,1 m2 + lodžie 8,4 m2 se nachází v 5. nadzemním podlaží (z celkových šesti) s orientací na sever, východ a západ.
Dispozice bytu: obývací pokoj s kuchyňským koutem, ložnice, pokoj, koupelna, samostatné WC, chodba, komora, lodžie.
Cena za postoupení bytu: 3 990 000 Kč (zaplatíte nyní z vlastních zdrojů)
Doplatek anuity za byt: 7 900 763 Kč (po kolaudaci a převzetí bytu)
Nepotřebujete hypotéku, žádné schvalování bankou, bez dokazování příjmu.
Anuita se splácí až po převzetí dokončeného bytu (předpoklad kolaudace 05/2026). Nyní zaplatíte pouze cenu za postoupení.
Garážové stání a sklep za příplatek.
Aktuálně měsíční splátka anuity bytu činí 42 761 Kč.
Developer bude před dokončením projektu jednat s financující bankou o snížení úrokových sazeb na základě aktuální situace na trhu.
V době výstavby nelze převést do osobního vlastnictví.
Za 15 minut chůze se dostanete do Prokopského údolí.
Tramvajové linky ze zastávky Náměstí Olgy Scheinpflugové jezdí 13 minut na Smíchovské nádraží (metro B, vlaková spojení) či na Národní divadlo.
Plavecký komplex Aquadream.
Skvělá občanská vybavenost - potraviny, kavárny, základní a mateřská škola. + anuita, včetně právního servisu Třída energetické náročnosti: (dle ) Cena: 3 990 000 Kč
Předpoklad kolaudace 05/2026.
Bytová jednotka 3+kk o velikosti 78,1 m2 + lodžie 8,4 m2 se nachází v 5. nadzemním podlaží (z celkových šesti) s orientací na sever, východ a západ.
Dispozice bytu: obývací pokoj s kuchyňským koutem, ložnice, pokoj, koupelna, samostatné WC, chodba, komora, lodžie.
Cena za postoupení bytu: 3 990 000 Kč (zaplatíte nyní z vlastních zdrojů)
Doplatek anuity za byt: 7 900 763 Kč (po kolaudaci a převzetí bytu)
Nepotřebujete hypotéku, žádné schvalování bankou, bez dokazování příjmu.
Anuita se splácí až po převzetí dokončeného bytu (předpoklad kolaudace 05/2026). Nyní zaplatíte pouze cenu za postoupení.
Garážové stání a sklep za příplatek.
Aktuálně měsíční splátka anuity bytu činí 42 761 Kč.
Developer bude před dokončením projektu jednat s financující bankou o snížení úrokových sazeb na základě aktuální situace na trhu.
V době výstavby nelze převést do osobního vlastnictví.
Za 15 minut chůze se dostanete do Prokopského údolí.
Tramvajové linky ze zastávky Náměstí Olgy Scheinpflugové jezdí 13 minut na Smíchovské nádraží (metro B, vlaková spojení) či na Národní divadlo.
Plavecký komplex Aquadream.
Skvělá občanská vybavenost - potraviny, kavárny, základní a mateřská škola. + anuita, včetně právního servisu Třída energetické náročnosti: (dle ) Cena: 3 990 000 Kč
|
| |||||||||||||||||||||||||||||||
Kontaktovat inzerenta emailem
Kontaktovat emailem může pouze ověřený uživatel.
Ověření je zdarma.
Vaše telefonní číslo *
Kontaktovat emailem může pouze ověřený uživatel.
Ověření je zdarma.
Vaše telefonní číslo *








