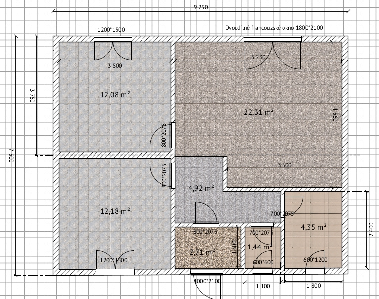
Modulovy dům 7,5x9,25x3.7
- [25.2. 2026]Smazat/ Upravit/ Topovat
















Nabízíme domy ze SIP panelu 2+kk nebo 3+kk
1 možnost - vyrábíme moduly a montujeme u vás na miste.
2 možnost - skládáme u vás na pozemku.
Obsah:
- montážní dokumentaci.
- podlaha SIP 224 mm. Zemní vruty nebo betonové patky nejsou v ceně.
- obvodové a nosné stěny SIP 224 mm.
- příčky SIP 124 mm
- střešní konstrukci SIP 224
- spojovací a montážní materiál.
- okna 1200×1500 2 ks.
- balkonové dveře 1800x2100 mm
- plastové vchodové dveře 1000x2100.
- okno 600x1500 mm v koupelně.
- střešní krytina (střešní šindel).
Cena domu na klič - 1 900 000 Kč s DPH.
Cena je vždy individuální, podle složitosti projektu. V ceně nejsou zahrnuty zemní vruty, betonové patky, doprava.
1 možnost - vyrábíme moduly a montujeme u vás na miste.
2 možnost - skládáme u vás na pozemku.
Obsah:
- montážní dokumentaci.
- podlaha SIP 224 mm. Zemní vruty nebo betonové patky nejsou v ceně.
- obvodové a nosné stěny SIP 224 mm.
- příčky SIP 124 mm
- střešní konstrukci SIP 224
- spojovací a montážní materiál.
- okna 1200×1500 2 ks.
- balkonové dveře 1800x2100 mm
- plastové vchodové dveře 1000x2100.
- okno 600x1500 mm v koupelně.
- střešní krytina (střešní šindel).
Cena domu na klič - 1 900 000 Kč s DPH.
Cena je vždy individuální, podle složitosti projektu. V ceně nejsou zahrnuty zemní vruty, betonové patky, doprava.
|
| |||||||||||||||||||||||||||||||
Kontaktovat inzerenta emailem
Kontaktovat emailem může pouze ověřený uživatel.
Ověření je zdarma.
Vaše telefonní číslo *
Kontaktovat emailem může pouze ověřený uživatel.
Ověření je zdarma.
Vaše telefonní číslo *