Pronájem obchod a služby v Brně, ul. Minská
- [27.2. 2026]Smazat/ Upravit/ Topovat























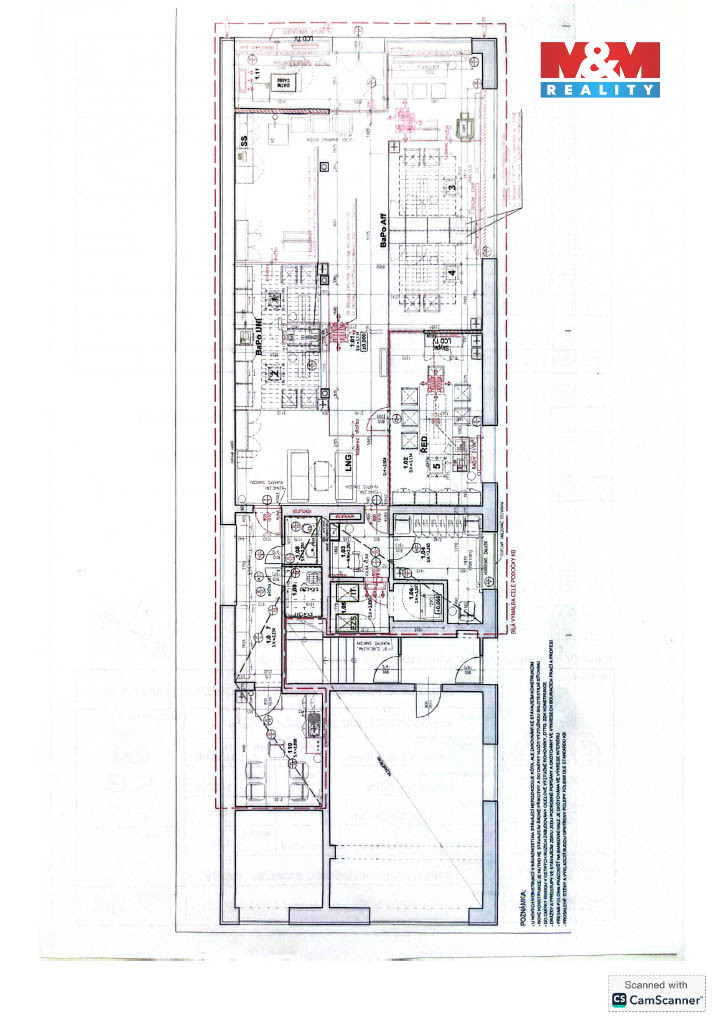
Pronájem komerčních prostor 175 m² v žádané části Brna, Žabovřeskách. Jednotka se nachází v 1. nadzemním podlaží ze 3, cihlová zateplená konstrukce, velmi dobrý stav.
Vhodné pro showroom, obchod, studio, služby, banku, kancelářské zázemí s přímým kontaktem s klienty. Prostor má výbornou viditelnost z ulice a samostatný vstup z ulice i z chodby objektu. Hlavní část tvoří rozsáhlá prodejní plocha, kterou lze příčkami rozdělit. Součástí je zázemí s kuchyňským koutem, toaleta a úklidová místnost..
V bezprostřední blízkosti se nachází tramvajová zastávka Králova.Poloha v rušné části obce zajišťuje dobrou průchodnost a viditelnost provozu. Prostor bude volný po dohodě do 2 měsíců.
Více informací a termín prohlídky na vyžádání u makléře.
Lokalita: Minská, Žabovřesky
Cena na dotaz v RK
Evidenční číslo: 934331
Energetická náročnost : Třída G - Mimořádně nehospodárná
Vhodné pro showroom, obchod, studio, služby, banku, kancelářské zázemí s přímým kontaktem s klienty. Prostor má výbornou viditelnost z ulice a samostatný vstup z ulice i z chodby objektu. Hlavní část tvoří rozsáhlá prodejní plocha, kterou lze příčkami rozdělit. Součástí je zázemí s kuchyňským koutem, toaleta a úklidová místnost..
V bezprostřední blízkosti se nachází tramvajová zastávka Králova.Poloha v rušné části obce zajišťuje dobrou průchodnost a viditelnost provozu. Prostor bude volný po dohodě do 2 měsíců.
Více informací a termín prohlídky na vyžádání u makléře.
Lokalita: Minská, Žabovřesky
Cena na dotaz v RK
Evidenční číslo: 934331
Energetická náročnost : Třída G - Mimořádně nehospodárná
|
| |||||||||||||||||||||||||||||||
Kontaktovat inzerenta emailem
Kontaktovat emailem může pouze ověřený uživatel.
Ověření je zdarma.
Vaše telefonní číslo *
Kontaktovat emailem může pouze ověřený uživatel.
Ověření je zdarma.
Vaše telefonní číslo *


