Sanitární modul 6,3x2,4 m M/Z/invalidy
- [14.3. 2026]Smazat/ Upravit/ Topovat























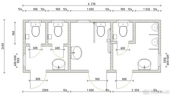
Sanitární modul je plně vybavená jednotka, která zajišťuje komfortní hygienické zázemí. Jeho design je optimalizován pro maximální využití prostoru a snadnou údržbu. Sanitární modul má rozměry 6,3 × 2,4 m a výšku 2,8 m. Konstrukce je zateplena 10 cm izolací, což zajišťuje tepelný komfort a energetickou efektivitu.
Hlavní prvky modulu
Vnější opláštění – smrková palubka, která poskytuje estetický vzhled a ochranu proti povětrnostním vlivům.
Vnitřní povrchy – bílá laminodeska nebo plastová palubka bila, která je snadno omyvatelná, hygienická a odolná proti vlhkosti.
Dispoziční řešení
Modul je rozdělen na tři části – mužskou/ženskou sekci a sekci pro invalidy. Každá sekce má vlastní vstup a hygienické vybavení.
Část pro ženy:
2 oddělené WC
1 umyvadlo v prostoru
Část pro muže:
1 oddělené WC
1 SAPHO - HANDICAP keramické umyvadlo pro handicapované
2 pisoáry
Část pro invalidy:
1 Wc závěsné Duravit Starck 3
1 umyvadlo v prostoru
1 SAPHO - HANDICAP madlo sklopné 813
1 SAPHO - HANDICAP opěrné pevné madlo tvar U 813
2 SAPHO - HANDICAP madlo rovné 600
Větrání – přes okna pro zajištění hygienických podmínek.
Vodovodní a kanalizační přípojky – snadná instalace a možnost připojení k externí infrastruktuře.
Sanitární modul je připraven k připojení na vodovodní a odpadní systém, což zajišťuje jeho rychlou instalaci a funkčnost. Modul je navržen pro rekreační, pracovní i veřejné využití, nabízí praktické a hygienické řešení pro větší počet uživatelů.
Na objednávku
Hlavní prvky modulu
Vnější opláštění – smrková palubka, která poskytuje estetický vzhled a ochranu proti povětrnostním vlivům.
Vnitřní povrchy – bílá laminodeska nebo plastová palubka bila, která je snadno omyvatelná, hygienická a odolná proti vlhkosti.
Dispoziční řešení
Modul je rozdělen na tři části – mužskou/ženskou sekci a sekci pro invalidy. Každá sekce má vlastní vstup a hygienické vybavení.
Část pro ženy:
2 oddělené WC
1 umyvadlo v prostoru
Část pro muže:
1 oddělené WC
1 SAPHO - HANDICAP keramické umyvadlo pro handicapované
2 pisoáry
Část pro invalidy:
1 Wc závěsné Duravit Starck 3
1 umyvadlo v prostoru
1 SAPHO - HANDICAP madlo sklopné 813
1 SAPHO - HANDICAP opěrné pevné madlo tvar U 813
2 SAPHO - HANDICAP madlo rovné 600
Větrání – přes okna pro zajištění hygienických podmínek.
Vodovodní a kanalizační přípojky – snadná instalace a možnost připojení k externí infrastruktuře.
Sanitární modul je připraven k připojení na vodovodní a odpadní systém, což zajišťuje jeho rychlou instalaci a funkčnost. Modul je navržen pro rekreační, pracovní i veřejné využití, nabízí praktické a hygienické řešení pro větší počet uživatelů.
Na objednávku
|
| |||||||||||||||||||||||||||||||
Kontaktovat inzerenta emailem
Kontaktovat emailem může pouze ověřený uživatel.
Vaše telefonní číslo *
Kontaktovat emailem může pouze ověřený uživatel.
Vaše telefonní číslo *


