Prodej bytu 3+1 (83,5 m2), Choceň
- [6.4. 2026]Smazat/ Upravit/ Topovat






























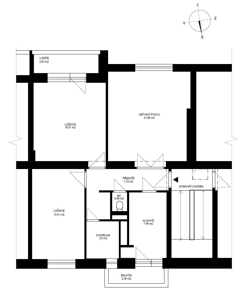
Vítejte v bytě, kde budete mít dokonalý klid. Díky bezproblémovému složení obyvatel domu a poloze v nejvyšším podlaží máte skvělý výhled a proslunění, které ani v zimě nezastíní okolní domy, a rozhodně vám nebude nikdo dupat nad hlavou. Můžete se provětrat na vlastní lodžii, nebo z druhé strany bytu na zastřešeném balkonu.
Zděný bytový dům prošel kvalitní revitalizací se zateplením ze silné minerální vaty (dům může „dýchat“) a silným zateplením střechy, které zajišťuje, že ani v nejteplejších letních dnech nedochází k přehřívání. Rovněž jsou zde nová plastová okna.
Byt je vybaven vlastním plynovým kotlem Baxi pro vytápění v litinových radiátorech a ohřev teplé vody, takže náklady máte plně pod kontrolou. Dům je čistý a udržovaný v perfektní formě, s parkováním přímo před vchodem. Vnitřek bytu prošel částečnou rekonstrukcí a k dispozici je také prostorný sklep. Byt je v osobním vlastnictví a nachází se na adrese Choceň, Revoluční 1482.
Zděný bytový dům prošel kvalitní revitalizací se zateplením ze silné minerální vaty (dům může „dýchat“) a silným zateplením střechy, které zajišťuje, že ani v nejteplejších letních dnech nedochází k přehřívání. Rovněž jsou zde nová plastová okna.
Byt je vybaven vlastním plynovým kotlem Baxi pro vytápění v litinových radiátorech a ohřev teplé vody, takže náklady máte plně pod kontrolou. Dům je čistý a udržovaný v perfektní formě, s parkováním přímo před vchodem. Vnitřek bytu prošel částečnou rekonstrukcí a k dispozici je také prostorný sklep. Byt je v osobním vlastnictví a nachází se na adrese Choceň, Revoluční 1482.
|
| |||||||||||||||||||||||||||||||
Kontaktovat inzerenta emailem
Kontaktovat emailem může pouze ověřený uživatel.
Vaše telefonní číslo *
Kontaktovat emailem může pouze ověřený uživatel.
Vaše telefonní číslo *









