Pronájem ordinace Svitavy
- [10.4. 2026]Smazat/ Upravit/ Topovat
















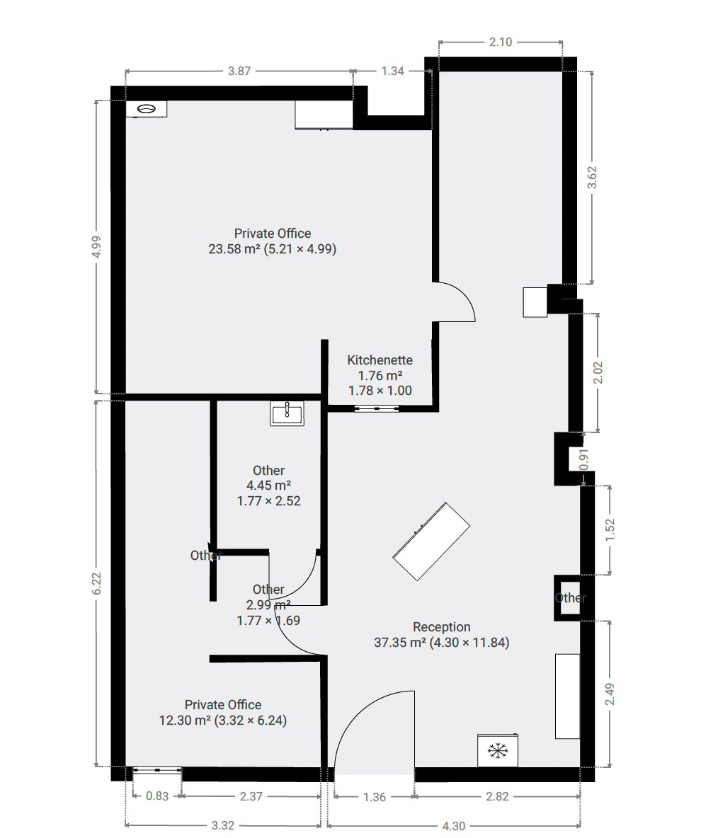
Hledáte prostor pro ordinaci v centru Svitav. Bývalý prostor ortodoncie čeká na své nové využití. Prostor má výměru necelých 83 m2 a nachází se ve třetím nadzemním podlaží cihlového domu přímo na náměstí ve Svitavách. Toaleta je společná pro jedno nadzemní podlaží. Měsíční nájemné činí 7.500,- Kč. Elektřina se rozpočítává podle plochy, kdy elektroměr slouží pouze pro dané nadzemní podlaží. Voda a topení je již paušálně zahrnuto v ceně nájemného. Vratná kauce je stanovena na 15.000,- Kč. Volné ihned. Neplatíte provizi RK. V případě zájmu či dotazů mne neváhejte kontaktovat. Budu se těšit na prohlídku.
|
| |||||||||||||||||||||||||||||||
Kontaktovat inzerenta emailem
Kontaktovat emailem může pouze ověřený uživatel.
Vaše telefonní číslo *
Kontaktovat emailem může pouze ověřený uživatel.
Vaše telefonní číslo *