Prodej řadového rodinného domu v klidné lokalitě ul.Horní
- [26.9. 2025]Smazat/ Upravit/ Topovat











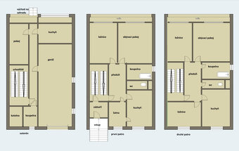
Nabízíme výhradně k prodeji řadový rodinný dům o dvou bytových jednotkách v krásné, klidné lokalitě na ulici Horní v Jihlavě. Jedná se o třípodlažní zděný dům.
V přízemí se nachází bytová jednotka 2+1 sestávající z obývacího pokoje a ložnice situované směrem do zahrady, dále kuchyň, šatna, prostorná předsíň, koupelna a samostatné WC. Součástí jednotky je velká lodžie přístupná z ložnice i obývacího pokoje.
V 1. patře je opět velká lodžie s nádherným výhledem na zahradu a do zeleně. Dále bytová jednotka o velikosti 3+1 – kuchyň, 2 ložnice, obývací pokoj, koupelna, samostatné WC, předsíň a schodiště.
V suterénu domu je technické zázemí, koupelna, velká garáž, kuchyňka, pokoj, malý sklad na nářadí, chodba a vstup na zahradu. Prostor lze využívat i jako samostatnou bytovou jednotku 1+1 s východem na zahradu.
Vytápění bytových jednotek a ohřev vody zajišťují plynové kotle. Dům je napojený na obecní vodovod, kanalizaci, el.en. a plyn. Na domě jsou umístěny solární panely, které zajišťují ohřev vody do bytové jednotky 3+1 v 1.patře. V případě potřeby lze přepnout na el.bojler. Celý pozemek u domu je vydlážděný a vznikla zde 3 parkovací místa. Dům je v dobře udržovaném stavu, prošel několika úpravami a rekonstrukcí. K domu náleží i velká, rovinatá, dobře udržovaná zahrada, poskytující příjemné soukromí, se zahradním domkem umožňující další možné využití dle představ a potřeb majitelů. Velkou výhodou je samotná poloha nemovitosti, kdy bydlíte v klidné dobře dostupné lokalitě krajského města uprostřed nádherné přírody.
V případě potřeby vám zajistíme optimální finanční zdroje s co nejnižšími náklady.
V přízemí se nachází bytová jednotka 2+1 sestávající z obývacího pokoje a ložnice situované směrem do zahrady, dále kuchyň, šatna, prostorná předsíň, koupelna a samostatné WC. Součástí jednotky je velká lodžie přístupná z ložnice i obývacího pokoje.
V 1. patře je opět velká lodžie s nádherným výhledem na zahradu a do zeleně. Dále bytová jednotka o velikosti 3+1 – kuchyň, 2 ložnice, obývací pokoj, koupelna, samostatné WC, předsíň a schodiště.
V suterénu domu je technické zázemí, koupelna, velká garáž, kuchyňka, pokoj, malý sklad na nářadí, chodba a vstup na zahradu. Prostor lze využívat i jako samostatnou bytovou jednotku 1+1 s východem na zahradu.
Vytápění bytových jednotek a ohřev vody zajišťují plynové kotle. Dům je napojený na obecní vodovod, kanalizaci, el.en. a plyn. Na domě jsou umístěny solární panely, které zajišťují ohřev vody do bytové jednotky 3+1 v 1.patře. V případě potřeby lze přepnout na el.bojler. Celý pozemek u domu je vydlážděný a vznikla zde 3 parkovací místa. Dům je v dobře udržovaném stavu, prošel několika úpravami a rekonstrukcí. K domu náleží i velká, rovinatá, dobře udržovaná zahrada, poskytující příjemné soukromí, se zahradním domkem umožňující další možné využití dle představ a potřeb majitelů. Velkou výhodou je samotná poloha nemovitosti, kdy bydlíte v klidné dobře dostupné lokalitě krajského města uprostřed nádherné přírody.
V případě potřeby vám zajistíme optimální finanční zdroje s co nejnižšími náklady.
|
|
Kontaktovat inzerenta emailem
Kontaktovat emailem může pouze ověřený uživatel.
Ověření je zdarma.
Vaše telefonní číslo *
Kontaktovat emailem může pouze ověřený uživatel.
Ověření je zdarma.
Vaše telefonní číslo *
Podobné inzeráty

Investice snů! Rodinný dům, Jihlava, ulice Fügnerova. Nabízíme vám výjimečnou příležitost ke koupi vily z roku 1934, která se nachází v jedné z nejžádanějších a nejklidnějších rezidenčních částí Jihlavy, v ulici Fügnerova.
Tato budova si se svou arc ...
8 320 000 Kč
Jihlava
586 01
586 01
225 x
Označit špatný inzerát Chybnou kategorii Ohodnotit uživatele Smazat/Upravit/Topovat

Prodej, domy/rodinný, 136 m2, Zborná 37, 58601 Jihlava, Jihlava [ID 74027]
Nabídka k prodeji: Trvalá stavba pro rodinnou rekreaci nebo pozemek se stavebním povolením v obci Zborná u Jihlavy.
Nabízíme dvě unikátní možnosti pro Vaši budoucnost v atra ...
8 490 000 Kč
Jihlava
586 01
586 01
149 x
Označit špatný inzerát Chybnou kategorii Ohodnotit uživatele Smazat/Upravit/Topovat

Prodej řadového rodinného domu v klidné a žádané lokalitě Jihlavy – ulice Musilova
Nabízíme k prodeji řadový rodinný dům ve vyhledávané a tiché části Jihlavy, v ulici Musilova.
Nemovitost nabízí široké možnosti využití – ideální pro vícegenerační ...
8 800 000 Kč
Jihlava
586 01
586 01
223 x
Označit špatný inzerát Chybnou kategorii Ohodnotit uživatele Smazat/Upravit/Topovat

Nabízíme Vám dům, který v sobě spojuje praktické bydlení, výjimečné umístění a pocit opravdového domova. Nachází se na klidném místě s nádherným výhledem na celou obec Luka nad Jihlavou. Pokud hledáte bydlení, kde budete mít každý den kousek přírod ...
8 990 000 Kč
Jihlava
586 01
586 01
320 x
Označit špatný inzerát Chybnou kategorii Ohodnotit uživatele Smazat/Upravit/Topovat

Rodinný dům v atraktivní lokalitě Hruškovy Dvory v Jihlavě, s jedinečným výhledem na město. Dům nabízí skvělé možnosti pro dvougenerační bydlení a nachází se v oblasti s výbornou dostupností a veškerou občanskou vybaveností. Prosluněné prostory a mož ...
6 980 000 Kč
Jihlava
586 01
586 01
271 x
Označit špatný inzerát Chybnou kategorii Ohodnotit uživatele Smazat/Upravit/Topovat

Nabízíme k prodeji nemovitost vhodnou jako kombinace bydlení a komerčního využití, která je umístěna v centru Jihlavy na ul. Palackého. Jedná se o podsklepený řadový dům o celkem 3NP o celkové ploše 390 m2 + půdě 60 m2, sklep 100 m2, ZP domu 144 ...
13 380 000 Kč
Jihlava
586 01
586 01
305 x
Označit špatný inzerát Chybnou kategorii Ohodnotit uživatele Smazat/Upravit/Topovat

Prodej víceúčelového domu na ulici Brněnská v Jihlavě. Dům byl v minulosti využíván jako penzion, ubytování, kanceláře. Aktuálně jsou zde v přízemí nebytové prostory, které byly pronajímány (prádelna, sklad lyží, kavárna ..) Ve druhém podlaží jsou um ...
13 000 000 Kč
Jihlava
586 01
586 01
256 x
Označit špatný inzerát Chybnou kategorii Ohodnotit uživatele Smazat/Upravit/Topovat

, Dumrealit.cz Vám zprostředkuje exkluzivně prodej pasivních samostatných rodinných domů o dispozici 5+kk, které jsou situované na pozemcích s výměrou od 658 po 746 m² a disponují s obytnou plochou 117 m² (celková užitná plocha s terasou 135 m²) v pr ...
11 490 000 Kč
Jihlava
586 01
586 01
296 x
Označit špatný inzerát Chybnou kategorii Ohodnotit uživatele Smazat/Upravit/Topovat

Prodám rodinný dům 6+1 s velkou zahradou o výměře 1193 m2 na ulici Sokolovská, plynový kotel, solární elektrárna, vhodný k rekonstrukci.
11 000 000 Kč
Jihlava
586 01
586 01
617 x
Označit špatný inzerát Chybnou kategorii Ohodnotit uživatele Smazat/Upravit/Topovat

Plocha pozemku 598 m²
Užitná plocha 149 m²
Zastavěná plocha 166 m²
Celková plocha 291 m²
Zahrada o ploše 320 m²
Jedná se stavbu dvougeneračního rodinného domu o jednom suterénním podlaží, dvou nadzemních podlažích a s podkrovím. První a druhé ...
19 480 000 Kč
Jihlava
586 01
586 01
521 x
Označit špatný inzerát Chybnou kategorii Ohodnotit uživatele Smazat/Upravit/Topovat