Prodej chaty 45 m², pozemek 538 m², Mladecko
- [24.10. 2025]Smazat/ Upravit/ Topovat



























Ve výhradním zastoupení majitele Vám nabízíme chatu s terasou v obci Mladecko u Opavy.
Chata s evidenčním číslem se nachází na polosamotě. Výměra pozemku je dostačujících 538 m². Je v osobním vlastnictví a přístup je zajištěn po obecní komunikaci.
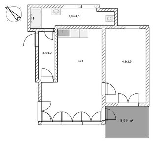
Chata má zastavěnou plochu 51 m² s dispozici 2KK. Z chodby se dostaneme do obývacího pokoje s kuchyní. Vytápění je zajištěno kamny na tuhá paliva. Kuchyňská linka, celoroční pitná voda, lednice i prostor na vaření. Z obývacího pokoje je vstup do ložnice a také na terasu kde si zpříjemníte chvíle odpočinku. Z chodby je přístupná také koupelna se sprchovacím koutem a toaletou. Ohřev vody je zajištěn bojlerem na elektřinu. Podlahová plocha je 45 m².
Suterén má garáž, malou dílnu a uhelnu. Uskladnit zde půjde opravdu všechno a 22 m² je dostačujících.
Na zahradě můžeme využít venkovní posezení. Výměra pozemku 538 m².
Chata je zděná a částečně dřevostavba. Zůstane vybavená.
Železniční trať Opava východ – Svobodné Heřmanice
Autobus: Opava, Olomouc
V blízkosti lom Litultovice, lom Šifr, vodní nádrž Kružberk a Slezská Harta.
S financováním Vám rádi pomohou naší finanční specialisté.
Pro bližší informace nebo termín sjednání schůzky mne prosím kontaktujte.
Chata s evidenčním číslem se nachází na polosamotě. Výměra pozemku je dostačujících 538 m². Je v osobním vlastnictví a přístup je zajištěn po obecní komunikaci.
Chata má zastavěnou plochu 51 m² s dispozici 2KK. Z chodby se dostaneme do obývacího pokoje s kuchyní. Vytápění je zajištěno kamny na tuhá paliva. Kuchyňská linka, celoroční pitná voda, lednice i prostor na vaření. Z obývacího pokoje je vstup do ložnice a také na terasu kde si zpříjemníte chvíle odpočinku. Z chodby je přístupná také koupelna se sprchovacím koutem a toaletou. Ohřev vody je zajištěn bojlerem na elektřinu. Podlahová plocha je 45 m².
Suterén má garáž, malou dílnu a uhelnu. Uskladnit zde půjde opravdu všechno a 22 m² je dostačujících.
Na zahradě můžeme využít venkovní posezení. Výměra pozemku 538 m².
Chata je zděná a částečně dřevostavba. Zůstane vybavená.
Železniční trať Opava východ – Svobodné Heřmanice
Autobus: Opava, Olomouc
V blízkosti lom Litultovice, lom Šifr, vodní nádrž Kružberk a Slezská Harta.
S financováním Vám rádi pomohou naší finanční specialisté.
Pro bližší informace nebo termín sjednání schůzky mne prosím kontaktujte.
|
| |||||||||||||||||||||||||||||||
Kontaktovat inzerenta emailem
Kontaktovat emailem může pouze ověřený uživatel.
Ověření je zdarma.
Vaše telefonní číslo *
Kontaktovat emailem může pouze ověřený uživatel.
Ověření je zdarma.
Vaše telefonní číslo *






