Prodej RD 5+1 Rajhrad u Brna, klimatizace, bazén
- [23.11. 2025]Smazat/ Upravit/ Topovat




























Prodám samostatně stojící RD 5+1 v Rajhradě, skvělá dostupnost pouze 5km od Brna.
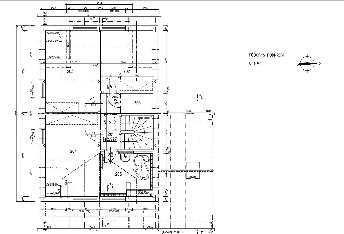
Zastavěná plocha domu 107 m², užitná plocha domu 145 m², celková plocha pozemku 455 m².
Dřevostavba od českého výrobce, záruka na konstrukci domu do roku 2041.
Zatepleno 10cm polystyrénem. Okna trojskla. PENB B.
Kolaudace domu proběhla v roce 2011. V roce 2021 proběhla modernizace domu, všechny obytné místnosti jsou nově klimatizované s tepelným čerpadlem s možností topení. Dále v přízemí nové podlahy z masivu, dveře a nová kuchyňská linka vč. spotřebičů AEG. Záruka na kuchyň do roku 2046.
Vytápění domu je elektrokotlem s radiátory, ovládané centrálním termostatem. Vyřízena nejvýhodnější sazba D45d, nízký tarif 22hod denně. Dále komín Schiedel s možností napojení na kamna v obyvacím pokoji.
Celkové náklady na provoz domu kolem 6000Kč/měs. Dům je připojen na obecní kanalizaci a obecní vodovod, přípojka elektro 230/400V.
Celý pozemek je oplocený betonovým plotem ze štípaných tvárnic, s dřevěnými výplněmi a velkou vjezdovou bránou na DO.
Udržovaná zahrada se zastřešeným bazénem o rozměrech 4x3m.
Položen travní koberec s automatickou závlahou, dále vzrostlé tůje a katalpa.
Na zahradě je betonová terasa zastřešená markýzou, pro venkovní posezení slouží ratanový nábytek, dále je na zahradě dětská skluzavka s houpačkou, zahradní domek na nářadí.
Parkování je na vlastním pozemku - pro jedno auto v garáži a až 3 auta na venkovní vydlážděné ploše za bránou.
Dům se nachází v obytné zoně. V Rajhradě je veškerá občanská vybavenost MŠ, ZŠ, SŠ, Tesco, Billa, lékaři, vlaková zastávka, IDS.
V domě se nikdy nekouřilo. Prodej přímo od majitele. Na domě neváznou žádná zástavní práva, ani břemena. Volné po dohodě. Cena včetně veškerého právního servisu a advokátní úschovy.
Volejte prosím jen vážní a přímí zájemci! Děkuji za pochopení. RK NEVOLAT.
Telefonní číslo je skryté kvůli neustálě obtěžujícím RK. V případě zájmu prosím odepište pod inzerátem, obratem zavolám.
Zastavěná plocha domu 107 m², užitná plocha domu 145 m², celková plocha pozemku 455 m².
Dřevostavba od českého výrobce, záruka na konstrukci domu do roku 2041.
Zatepleno 10cm polystyrénem. Okna trojskla. PENB B.
Kolaudace domu proběhla v roce 2011. V roce 2021 proběhla modernizace domu, všechny obytné místnosti jsou nově klimatizované s tepelným čerpadlem s možností topení. Dále v přízemí nové podlahy z masivu, dveře a nová kuchyňská linka vč. spotřebičů AEG. Záruka na kuchyň do roku 2046.
Vytápění domu je elektrokotlem s radiátory, ovládané centrálním termostatem. Vyřízena nejvýhodnější sazba D45d, nízký tarif 22hod denně. Dále komín Schiedel s možností napojení na kamna v obyvacím pokoji.
Celkové náklady na provoz domu kolem 6000Kč/měs. Dům je připojen na obecní kanalizaci a obecní vodovod, přípojka elektro 230/400V.
Celý pozemek je oplocený betonovým plotem ze štípaných tvárnic, s dřevěnými výplněmi a velkou vjezdovou bránou na DO.
Udržovaná zahrada se zastřešeným bazénem o rozměrech 4x3m.
Položen travní koberec s automatickou závlahou, dále vzrostlé tůje a katalpa.
Na zahradě je betonová terasa zastřešená markýzou, pro venkovní posezení slouží ratanový nábytek, dále je na zahradě dětská skluzavka s houpačkou, zahradní domek na nářadí.
Parkování je na vlastním pozemku - pro jedno auto v garáži a až 3 auta na venkovní vydlážděné ploše za bránou.
Dům se nachází v obytné zoně. V Rajhradě je veškerá občanská vybavenost MŠ, ZŠ, SŠ, Tesco, Billa, lékaři, vlaková zastávka, IDS.
V domě se nikdy nekouřilo. Prodej přímo od majitele. Na domě neváznou žádná zástavní práva, ani břemena. Volné po dohodě. Cena včetně veškerého právního servisu a advokátní úschovy.
Volejte prosím jen vážní a přímí zájemci! Děkuji za pochopení. RK NEVOLAT.
Telefonní číslo je skryté kvůli neustálě obtěžujícím RK. V případě zájmu prosím odepište pod inzerátem, obratem zavolám.
|
| |||||||||||||||||||||||||||||||
Kontaktovat inzerenta emailem
Kontaktovat emailem může pouze ověřený uživatel.
Ověření je zdarma.
Vaše telefonní číslo *
Kontaktovat emailem může pouze ověřený uživatel.
Ověření je zdarma.
Vaše telefonní číslo *







