Prodej rodinného domu, 295 m², Nymburk, ul. Boleslavská tříd
- [13.11. 2025]Smazat/ Upravit/ Topovat






























Přízemí (I.NP) cca 85m2 tvoří nebytové prostory, k využití pro obchodní činnost nebo kancelářské zázemí, případně pro gastronomický provoz, se sociálním zázemím, komorou a prostupem na klidnou zahradu ve vnitrobloku.
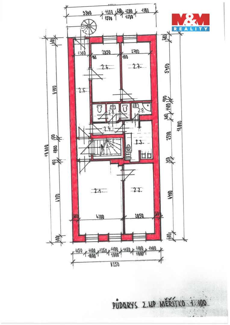
II.NP o výměře cca 105m2 tvoří 4 kanceláře, 1 propojovací chodba, sociální zázemí (2x WC a 1x samostatná koupelna se sprchou) a kuchyň. Po zadním schodišti sestoupit na zahradu.
III.NP (podkroví) o výměře cca 105 m2 tvoří atypický otevřený byt s velkým společným prostorem (kuchyně, jídelní část a obývací část) s klimatizací, jedním větším samostatným pokojem s okny do vnitrobloku (ložnice), jedním menším samostatným pokojem s okny do ulice (dětský pokoj/pracovna) s klimatizací, nadstandardně velkou průchozí koupelnou s vanou a sprchovým koutem a samostatnou šatnou s úložným prostorem.
Pod domem se nachází hezký historický sklep se stabilní teplotou, který lze využít k uskladnění mnoha věcí.
Lokalita: Boleslavská třída, Nymburk
Evidenční číslo: 919041
Energetická náročnost : Třída G - Mimořádně nehospodárná
II.NP o výměře cca 105m2 tvoří 4 kanceláře, 1 propojovací chodba, sociální zázemí (2x WC a 1x samostatná koupelna se sprchou) a kuchyň. Po zadním schodišti sestoupit na zahradu.
III.NP (podkroví) o výměře cca 105 m2 tvoří atypický otevřený byt s velkým společným prostorem (kuchyně, jídelní část a obývací část) s klimatizací, jedním větším samostatným pokojem s okny do vnitrobloku (ložnice), jedním menším samostatným pokojem s okny do ulice (dětský pokoj/pracovna) s klimatizací, nadstandardně velkou průchozí koupelnou s vanou a sprchovým koutem a samostatnou šatnou s úložným prostorem.
Pod domem se nachází hezký historický sklep se stabilní teplotou, který lze využít k uskladnění mnoha věcí.
Lokalita: Boleslavská třída, Nymburk
Evidenční číslo: 919041
Energetická náročnost : Třída G - Mimořádně nehospodárná
|
| |||||||||||||||||||||||||||||||
Kontaktovat inzerenta emailem
Kontaktovat emailem může pouze ověřený uživatel.
Ověření je zdarma.
Vaše telefonní číslo *
Kontaktovat emailem může pouze ověřený uživatel.
Ověření je zdarma.
Vaše telefonní číslo *
Podobné inzeráty
Prodej Zemědělská usedlost, 549㎡ - [15.11. 2025]Pro milovníky venkova či jezdeckého sportu nabízíme jedinečnou zemědělskou usedlost o rozloze 2 090 m² v klidné části obce Netřebice. Na pozemku se nachází patrový rodinný dům, samostatně stojící přízemní dům dříve využívaný k částečnému bydlení a ch ...
7 950 000 Kč
Nymburk
288 02
288 02
106 x
Označit špatný inzerát Chybnou kategorii Ohodnotit uživatele Smazat/Upravit/Topovat
Rodinný dům , Nymburk, ID 7909e 1012 - [14.11. 2025]Jedná se o samostatně stojící, přízemní rodinný dům s obytným podkrovím a volným půdním prostorem. Budova je pravděpodobně založena na základových pasech. Konstrukce budovy je zděná a její stavebně - technický stav je odpovídající dobré údržbě. K dom ...
7 854 000 Kč
Nymburk
288 02
288 02
102 x
Označit špatný inzerát Chybnou kategorii Ohodnotit uživatele Smazat/Upravit/Topovat
Prodej rodinného domu s novou fasádou, 6+kk, pozemek 956 m2, - [12.11. 2025]Jednou z hlavních předností této nemovitosti je nová fasáda, která jí dodává moderní vzhled, zlepšuje tepelnou izolaci a minimalizuje potřebu dalších investic. Výhodou pro nové majitele je také kompletní rekonstrukce interiéru!
Dům stojí u silnice s ...
13 999 999 Kč
Nymburk
288 02
288 02
84 x
Označit špatný inzerát Chybnou kategorii Ohodnotit uživatele Smazat/Upravit/Topovat
Prodej rodinného domu, 121 m², Kamenné Zboží - [11.11. 2025]Nabízíme ke koupi útulný rodinný dům po rekonstrukci v klidné obci Kamenné Zboží, která leží jen pár minut od Nymburka.
Dům o dispozici 4+1 nabízí komfortní bydlení pro rodinu, s dvěma koupelnami, obytným podkrovím a užitnou plochou 121 m². Celková p ...
6 990 000 Kč
Nymburk
288 02
288 02
133 x
Označit špatný inzerát Chybnou kategorii Ohodnotit uživatele Smazat/Upravit/Topovat
Prodej rodinného domu, 120 m², Všechlapy - [3.11. 2025]Nabízíme k prodeji nízkoenergetickou novostavbu rodinného domu ve Všechlapech u Nymburka. Tento samostatně stojící cihlový dům se nachází v klidné části obce, což zajišťuje soukromí a pohodlí pro vaši rodinu. Dům disponuje pěti místnostmi (obývací po ...
10 990 000 Kč
Nymburk
288 02
288 02
157 x
Označit špatný inzerát Chybnou kategorii Ohodnotit uživatele Smazat/Upravit/Topovat
Hořátev u Nymburka RD 4+1, garáž, zahrada 1040 m2 - [2.11. 2025]Nabízíme k prodeji prostorný rodinný domu 4+1 z roku 1973 , s velkou zahradou a samostatnou garáží a dílnou v obci Hořátev okres Nymburk , 4 km od Nymburka.
K domu náleží slunný pozemek o výměře 1040 m2. Pozemek se nachází jako poslední dům v uli ...
8 500 000 Kč
Nymburk
288 02
288 02
474 x
Označit špatný inzerát Chybnou kategorii Ohodnotit uživatele Smazat/Upravit/Topovat
Prodej rodinného domu A, 123 m², Nymburk, ul.Otokara Randáka - [31.10. 2025]Nabízíme k prodeji moderní novostavbu zděného dvojdomu v atraktivní lokalitě Nymburk – Zálabí, jen pár kroků od obchodů Lidl, Kaufland, Pepco a dalších.
Jedná se o rodinný dům, který je rozdělen na dvě poloviny - bytové jednotky (A a B), každá se pro ...
10 499 000 Kč
Nymburk
288 02
288 02
142 x
Označit špatný inzerát Chybnou kategorii Ohodnotit uživatele Smazat/Upravit/Topovat
Prodej rodinného domu, 159 m², Nymburk, ul. Pístecká - [16.10. 2025]Nabízíme k prodeji prostorný rodinný dům v klidné části obce Nymburk. Tato cihlová nemovitost je ideální volbou pro rodiny hledající bydlení s dostatkem prostoru. Dům s podlahovou plochu 159 m² + sklepy 51 m² a samostatně stojící dvojgaráží s dílnou ...
9 900 000 Kč
Nymburk
288 02
288 02
242 x
Označit špatný inzerát Chybnou kategorii Ohodnotit uživatele Smazat/Upravit/Topovat
Prodej rodinného domu, 178 m², Nymburk - [15.10. 2025]Nabízíme k prodeji exkluzivní novostavbu rodinného domu s užitnou plochou 178 m². Dům je ideální volbou pro ty, kteří hledají komfortní bydlení v nově vznikající moderní části na okraji Nymburka se skvělou dostupností a občanskou vybaveností. Dispozi ...
13 990 000 Kč
Nymburk
288 02
288 02
209 x
Označit špatný inzerát Chybnou kategorii Ohodnotit uživatele Smazat/Upravit/Topovat
II.etapa-Veleliby, prodej 1/2 RD tzv. dvojdům o velikosti 5+ - [14.10. 2025]Nabízíme Vám k prodeji 1/2 rodinného domu (jednotka č. 2.B-dům 4-s masivní pergolou), tzv. dvojdomu, o velikosti 5+kk o obytné ploše cca 133 m2 + terasa cca 17 m2, na pozemku 440 m2 Veleliby, okres Nymburk.
Dispozice přízemí: zádveří, technická místn ...
8 890 000 Kč
Nymburk
288 02
288 02
186 x
Označit špatný inzerát Chybnou kategorii Ohodnotit uživatele Smazat/Upravit/Topovat









