Prodej rd Svatý Kopeček
- [5.4. 2026]Smazat/ Upravit/ Topovat






























Prodej rodinného domu-Olomouc-Kopeček
Nabízíme k prodeji krajní dvoupodlažní rodinný dům s možností obytného podkroví v řadové výstavbě , který je situovaný do zástavby rodinných domů v atraktivní a klidné lokalitě obce Svatý Kopeček u Olomouce. Rodinný dům se nachází na okraji obce v blízkosti zastávky městské autobusové dopravy a tím je zajištěna výborná dopravní obslužnost. Okolí nabízí vyhlášenou Zoologickou zahradu, cyklostezky, přírodu a příjemné prostředí pro rodinný život.
Pozemek o rozloze 795 m² včetně zastavěné plochy poskytuje dostatek prostoru pro relaxaci a další další venkovní aktivity. Zahrada má vzrostlé stromy a od dalšího veřejného prostoru je oddělena vzrostlým živým plotem.
Díky promyšlené koncepci v době výstavby v sedmdesátých letech je dům příjemně prostorný a komfortní. Je celopodsklepený s garáží a dílnou a dalšími místnostmi které čekají na možnost využití.
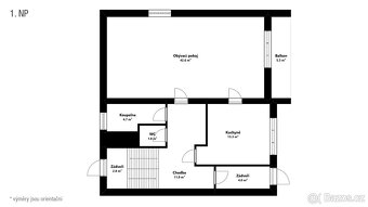
V prvním nadzemním podlaží je vstupní chodba ze které vede schodiště do patra, samostatné WC, koupelna s vanou a vstup do větší obytné místnosti která je propojena s kuchyní a tvoří zajímavý a prosvětlený celek.
Z mezipodesty schodiště do patra se vchází do zahrady na kryté zahradní zákoutí kde je příjemné posezení.
V druhém nadzemním podlaží je další otevřený obývací prostor, dva samostatné pokoje a druhá koupelna se sprchovým koutem a druhé samostatné WC.
Půdní prostor může být výhledově využít pro rozšíření podlahové plochy. Vytápění a ohřev vody zajišťuje plynový kotel a voda je využívána z
vlastní studny.
Vzhledem k prostorovému uspořádání je možné celý prostor domu
využít jako plošně na tři různé způsoby:
1. nadstandartní bytovou jednotku s velkou obytnou plochou
2. oddělené dvougenerační bydlení
3. rozdělení domu na tři samostatné bytové jednotky
Nabízíme k prodeji krajní dvoupodlažní rodinný dům s možností obytného podkroví v řadové výstavbě , který je situovaný do zástavby rodinných domů v atraktivní a klidné lokalitě obce Svatý Kopeček u Olomouce. Rodinný dům se nachází na okraji obce v blízkosti zastávky městské autobusové dopravy a tím je zajištěna výborná dopravní obslužnost. Okolí nabízí vyhlášenou Zoologickou zahradu, cyklostezky, přírodu a příjemné prostředí pro rodinný život.
Pozemek o rozloze 795 m² včetně zastavěné plochy poskytuje dostatek prostoru pro relaxaci a další další venkovní aktivity. Zahrada má vzrostlé stromy a od dalšího veřejného prostoru je oddělena vzrostlým živým plotem.
Díky promyšlené koncepci v době výstavby v sedmdesátých letech je dům příjemně prostorný a komfortní. Je celopodsklepený s garáží a dílnou a dalšími místnostmi které čekají na možnost využití.
V prvním nadzemním podlaží je vstupní chodba ze které vede schodiště do patra, samostatné WC, koupelna s vanou a vstup do větší obytné místnosti která je propojena s kuchyní a tvoří zajímavý a prosvětlený celek.
Z mezipodesty schodiště do patra se vchází do zahrady na kryté zahradní zákoutí kde je příjemné posezení.
V druhém nadzemním podlaží je další otevřený obývací prostor, dva samostatné pokoje a druhá koupelna se sprchovým koutem a druhé samostatné WC.
Půdní prostor může být výhledově využít pro rozšíření podlahové plochy. Vytápění a ohřev vody zajišťuje plynový kotel a voda je využívána z
vlastní studny.
Vzhledem k prostorovému uspořádání je možné celý prostor domu
využít jako plošně na tři různé způsoby:
1. nadstandartní bytovou jednotku s velkou obytnou plochou
2. oddělené dvougenerační bydlení
3. rozdělení domu na tři samostatné bytové jednotky
|
| |||||||||||||||||||||||||||||||
Kontaktovat inzerenta emailem
Kontaktovat emailem může pouze ověřený uživatel.
Vaše telefonní číslo *
Kontaktovat emailem může pouze ověřený uživatel.
Vaše telefonní číslo *
Podobné inzeráty
4 + kk + 3 +KK + obchodní prostory. Olomouc Lidická 8/22 - [8.4. 2026]Celková obytná plocha je 380m2.Pozemek 590m2.Všechny IS. + studna.Parkování na vlasnim pozemku.Prodej bez RK..
12 900 000 Kč
Olomouc
779 00
779 00
68 x
Označit špatný inzerát Chybnou kategorii Ohodnotit uživatele Smazat/Upravit/Topovat
4+KK 190m2 + 3+KK 150m2 + prodejna 60m2 - [6.4. 2026]Olomouc Lidická 22.4x samostatný vchod.Samostatné měřicě.Parkovani na vlastnim pozemku..Celkový pozemek 590m2.Možnost pronajmu prodejny která pokryje naklady bydlení.
13 900 000 Kč
Olomouc
779 00
779 00
151 x
Označit špatný inzerát Chybnou kategorii Ohodnotit uživatele Smazat/Upravit/Topovat
Výjimečný dům 5+kk v Olomouci - Neředíně, ul.... - [2.4. 2026]Ve výhradním zastoupení majitele vám nabízíme ke koupi výjimečnou rezidenční nemovitost na jedné z nejlepších olomouckých adres. Jedná se o rodinný dům s dispozicí 5+kk s širokým zázemím v Olomouci – Neředíně, na ulici Družstevní.
Dům stojí na pozem ...
24 900 000 Kč
Olomouc
779 00
779 00
212 x
Označit špatný inzerát Chybnou kategorii Ohodnotit uživatele Smazat/Upravit/Topovat
Prodej RD se dvěma byty a velkou zahradou v Olomouci - [31.3. 2026]S výhradním zastoupením nabízíme ke koupi dům se dvěma byty a velkou zahradou v Olomouci na ulici Střední Novosadská. Jedná se o částečně podsklepený patrový dům se dvěma samostatnými byty. Vstupy do jednotlivých bytů jsou ze zadní části domu přístup ...
9 990 000 Kč
Olomouc
779 00
779 00
218 x
Označit špatný inzerát Chybnou kategorii Ohodnotit uživatele Smazat/Upravit/Topovat
Prodej, domu k rekonstrukci na skvělém místě, Olomouc - Neře - [28.3. 2026]Rodinný dům s velkým potenciálem v Olomouci – Neředíně. Zeleň, soukromí, možnosti.
Hledáte místo, které má téměř vše – výjimečnou lokalitu, prostor i budoucí potenciál? V olomoucké čtvrti Neředín, ve slepé a klidné ulici obklopené zelení, exkluzivně ...
12 900 000 Kč
Olomouc
779 00
779 00
252 x
Označit špatný inzerát Chybnou kategorii Ohodnotit uživatele Smazat/Upravit/Topovat
Prodej rodinného domu o rozloze 228 m², Olomouc - Hodolany - TOP - [2.4. 2026]Ev.č. 00311
Prodej rodinného domu se 3 bytovými jednotkami, sklepem a možností půdní vestavby – Olomouc, Hálkova ulice.
Nabízíme k prodeji prostorný rodinný dům v žádané atraktivní lokalitě nedaleko hlavního nádraží v Olomouci.
Lokalita má velmi d ...
17 995 194 Kč
Olomouc
779 00
779 00
364 x
Označit špatný inzerát Chybnou kategorii Ohodnotit uživatele Smazat/Upravit/Topovat
Prodej řadového domu se sklady, dílnami v Olomouci - Nedvěz - [23.3. 2026]Ev.č. 00755
Nabízíme vám ke koupi areál v Olomouci - Nedvězí.
Jedná se o nemovitost, která je vhodná pro bydlení i jako sídlo firmy, skladový nebo výrobní areál.
Celková rozloha činí 1.434 m2, zastavěná plocha 660 m2.
Jedná se o dvoupodlažní st ...
22 990 000 Kč
Olomouc
779 00
779 00
170 x
Označit špatný inzerát Chybnou kategorii Ohodnotit uživatele Smazat/Upravit/Topovat
Prodej rodinného domu, Olomouc, ul. Hellerova - [23.3. 2026]Nabízíme vám útulný a kompletně zrekonstruovaný rodinný dům o dispozici 3+1 (98 m²), který kombinuje klidné zázemí s výbornou dostupností do města. Srdcem domu je prostorný obývací pokoj a kuchyně se vstupem na venkovní terasu, která rozšiřuje obytný ...
9 250 000 Kč
Olomouc
779 00
779 00
328 x
Označit špatný inzerát Chybnou kategorii Ohodnotit uživatele Smazat/Upravit/Topovat
RD v Olomouci - [17.3. 2026]Prodám v Olomouci samost. stoj. větší dvoupodlažní (+ 1P.P.-sklep, garáž) RD třídy G k přestavbě. Zast.plocha 210, užitná plocha s balkóny atd. 333m2, zahrada přes 700 m2. Po přestavbě vhodný pro 2 a více samostatných byt.jednotek nebo ordinaci. V c ...
8 299 000 Kč
Olomouc
779 00
779 00
541 x
Označit špatný inzerát Chybnou kategorii Ohodnotit uživatele Smazat/Upravit/Topovat
Dům 6 a více o ploše 460 m2 - Olomouc, Nové Sady - [5.3. 2026]Hledáte stabilní investici v atraktivní lokalitě? Exkluzivně vám nabízíme jedinečnou možnost koupě momentálně rodinného domu s 5 bytovými jednotkami a jedním nebytovým prostorem ve vyhledávané části města Olomouc, na ulici Rooseveltova. Jedná se o 5 ...
19 990 000 Kč
Olomouc
779 00
779 00
397 x
Označit špatný inzerát Chybnou kategorii Ohodnotit uživatele Smazat/Upravit/Topovat









